Model Skyline
Seattle, Washington New Homes for Sale
Seattle, Washington New Homes for Sale
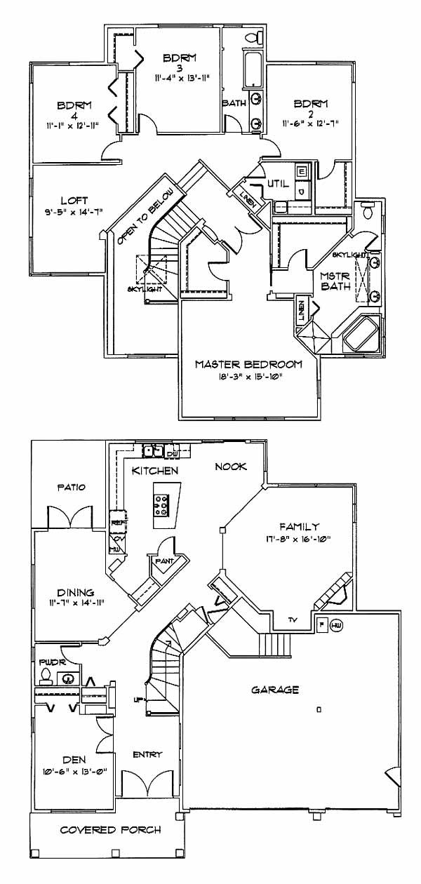
4 Bedroom, 2.5 Bath, 3 Car Garage
3211 - Square Feet
$625,900
Model Skyline - Seattle, Washington New Homes for Sale
4 Bedroom, 2.5 Bath, 3 Car Garage
3211 - Square Feet
$625,900
Area: Seattle, Washington
If you were living in this community, you'd be looking at some of the most breathtaking scenery in the Northwest. Everyday you would take in panoramic views of the Olympics and the Seattle skyline. Convenience to schools and shopping also makes this one of Seattle's most attractive neighborhoods.
The entry takes you pas the den and powder room and into the elegant dining room. From the dining room you can access the patio and the kitchen with island, pantry and breakfast nook. The kitchen is open to the family room with fireplace and TV niche. Upstairs you have the 2nd, 3rd and 4th bedrooms, loft area and the master bedroom and bath with walk-in closet and dual vanities.
Please complete the form below to get more information on Model Skyline and other available new home listings from a local Seattle, Washington Real Estate Agent
Contact a local Seattle, WA Real Estate Agent
(Please enter all fields.)
Skyline in Seattle
Featured New Home
Featured Real Estate Agents
Matthew Miner
Coldwell Banker Bain

Phone: (855) 910-6319
Seattle, WA
[email protected]
Brad Hinckley
Windermere Real Estate/Capitol Hill

Phone: (206) 504-2907
Seattle, WA
[email protected]
Terry Miller
Coldwell Banker Bain

Phone: (206) 745-3902
Seattle, WA
[email protected]
Javila Creer
Windermere Lakeview

Phone: (855) 906-4358
Seattle, WA
[email protected]
Warmack Group
Keller Williams Greater Seattle

Phone: (844) 311-5936
Seattle, WA
[email protected]
Featured Mortgage Brokers
- PRIMELENDING A PLAINSCAPITAL COMPANY, INDIANAPOLIS, IN
50 E 91ST ST STE 300
INDIANAPOLIS, IN 46240 - ADVISORS MORTGAGE GROUP LLC, TURNERSVILLE, NJ
4991 BLACK HORSE PIKE
TURNERSVILLE, NJ 8012 - REVERSE MORTGAGE SOLUTIONS INC, NEWBURGH, NY
700 CORPORATE BLVD
NEWBURGH, NY 12550 - MOVEMENT MORTGAGE LLC, RICHMOND, VA
5014 MONUMENT AVE
RICHMOND, VA 23230 - ALCOVA MORTGAGE LLC, ROANOKE, VA
305 MARKET ST SE STE 204
ROANOKE, VA 24011
