Model Lowell
Waller County, Texas New Homes for Sale
Waller County, Texas New Homes for Sale
3 Bedroom, 2.5 Bath, 2 Car Garage
2538 - Square Feet
$219,190
Model Lowell - Waller County, Texas New Homes for Sale
3 Bedroom, 2.5 Bath, 2 Car Garage
2538 - Square Feet
$219,190
Area: Waller County, Texas
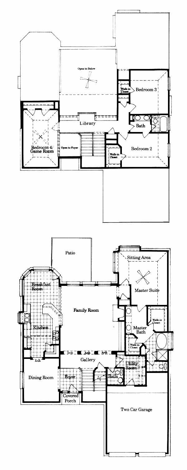
This beautiful two-story home features a main level Master Suite with sitting area, Master bath with 2 walk-in closets, very large family room, kitchen and breakfast room overlooking the patio. Main level utility room and dining room. Upstairs you will find two additional bedrooms both with walk-in closets, a game room or optional 4th bedroom, and a library that is open to the family room below. There is also an option for a 3rd full bath.
Please complete the form below to get more information on Model Lowell and other available new home listings from a local Waller County, Texas Real Estate Agent
Contact a local Waller County, TX Real Estate Agent
(Please enter all fields.)
Lowell in Waller County
Featured New Home
Featured Mortgage Brokers
- FIRST HERITAGE FINANCIAL, LLC, TREVOSE, PA
2655 NESHAMINY INTERPLEX DR
TREVOSE, PA 19053 - CATALYST LENDING INC, GREENWOOD VILLAGE, CO
6530 S YOSEMITE ST STE 310
GREENWOOD VILLAGE, CO 80111 - NEIGHBORS FINANCIAL CORP, SACRAMENTO, CA
2831 G ST STE 200
SACRAMENTO, CA 95816 - GUARANTEED RATE INC, PARSIPPANY, NJ
322 ROUTE 46 STE 170
PARSIPPANY, NJ 7054 - MANN MORTGAGE LLC, LEWISTON, ID
247 THAIN RD STE 104
LEWISTON, ID 83501
