Model Chadwyck
Waller County, Texas New Homes for Sale
Waller County, Texas New Homes for Sale
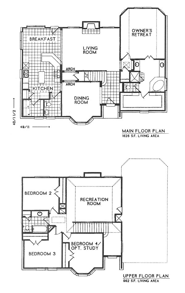
4 Bedroom, 2.5 Bath, 2.5 Car Garage
2588 - Square Feet
$220,490
Model Chadwyck - Waller County, Texas New Homes for Sale
4 Bedroom, 2.5 Bath, 2.5 Car Garage
2588 - Square Feet
$220,490
Area: Waller County, Texas
A new community in a wooded area/small community great for families. This two story home with owner's retreat and living room and dining room down. Secondary bedrooms, recreation room and optional study/fourth bedroom up. Two and a half car detached garage.
Please complete the form below to get more information on Model Chadwyck and other available new home listings from a local Waller County, Texas Real Estate Agent
Contact a local Waller County, TX Real Estate Agent
(Please enter all fields.)
Chadwyck in Waller County
Featured New Home
Featured Mortgage Brokers
- Priority Mortgage Corp., mortgage broker in Worthington, OH
150 E Wilson Bridge Rd Ste 350
Worthington, OH 43085 - Consolidated Loan Company of Albany- Home Office, mortgage broker in Albany, GA
430 W Tift Ave
Albany, GA 31701 - KENTUCKY HOUSING CORPORATION, FRANKFORT, KY
1231 LOUISVILLE RD
FRANKFORT, KY 40601 - 203K.TV, LAGUNA HILLS, CA
22501 CAMINITO COSTA
LAGUNA HILLS, CA 92653 - Ross Mortgage Corporation, mortgage broker in Royal Oak, MI
27862 Woodward Avenue
Royal Oak, MI 48067
