Model Chamberlain
Southwest Harris County, Texas New Homes for Sale
Southwest Harris County, Texas New Homes for Sale
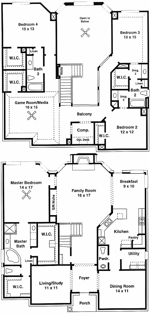
4 Bedroom, 3.5 Bath, 2 Car Garage
3325 - Square Feet Heat and Air
$267,950
Model Chamberlain - Southwest Harris County, Texas New Homes for Sale
4 Bedroom, 3.5 Bath, 2 Car Garage
3325 - Square Feet Heat and Air
$267,950
Area: Southwest Harris County, Texas
Formal living room has an option for a private study. Breakfast nook opens to family room and gourmet kitchen. Luxurious master bath includes his/hers vanities, walk-in closets and large oval tub. Community is located next to protected woodlands and major highways.
Please complete the form below to get more information on Model Chamberlain and other available new home listings from a local Southwest Harris County, Texas Real Estate Agent
Contact a local Southwest Harris County, TX Real Estate Agent
(Please enter all fields.)
Chamberlain in Southwest Harris County
Featured New Home
Featured Mortgage Brokers
- UNION MORTGAGE GROUP, INC., GREENBELT, MD
7501 GREENWAY CENTER DR
GREENBELT, MD 20770 - PRIMELENDING A PLAINSCAPITAL COMPANY, HIBBING, MN
2900 E BELTLINE STE 5
HIBBING, MN 55746 - AMERIPRO FUNDING INC, SAN ANTONIO, TX
401 E SONTERRA BLVD STE 375
SAN ANTONIO, TX 78258 - BANK OF NORTH CAROLINA, CHARLOTTE, NC
7422 CARMEL EXECUTIVE PARK DR
CHARLOTTE, NC 28226 - VENTA FINANCIAL GROUP INC, LAS VEGAS, NV
1300 S JONES BLVD STE 150
LAS VEGAS, NV 89146
