Model Darby
North Dallas, Texas New Homes for Sale
North Dallas, Texas New Homes for Sale
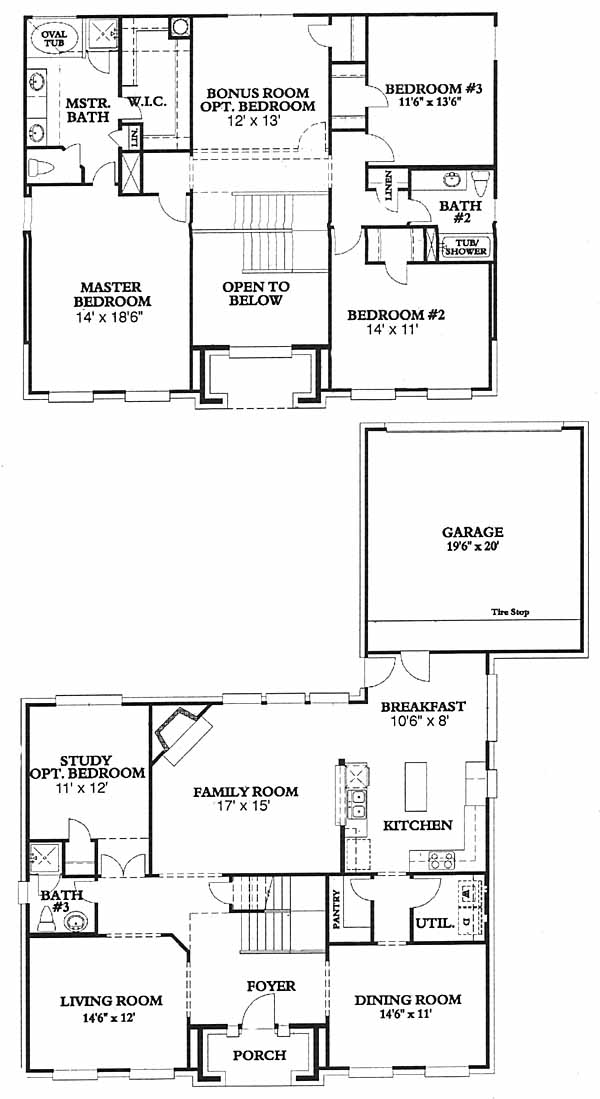
4 Bedroom, 3 Bath, 2 Car Garage
2828 - Square Feet Heat and Air
$236,990
Model Darby - North Dallas, Texas New Homes for Sale
4 Bedroom, 3 Bath, 2 Car Garage
2828 - Square Feet Heat and Air
$236,990
Area: North Dallas, Texas
Very spacious family room with fireplace. Study or bedroom number four, bonus room or bedroom number five. Island kitchen with breakfast area. Utility room and separate pantry. Master bedroom has a huge walk-in closet and separate shower and oval tub.
Please complete the form below to get more information on Model Darby and other available new home listings from a local North Dallas, Texas Real Estate Agent
Contact a local North Dallas, TX Real Estate Agent
(Please enter all fields.)
Darby in North Dallas
Featured New Home
Featured Real Estate Agents
J. Pete Livingston
Realty One Group Partners

Phone: (214) 494-8778
Dallas, TX
Hanne Sagalowsky
Dave Perry Miller Real Estate

Phone: (214) 402-8200
Dallas, TX
[email protected]
Carolina Rendon
Allie Beth Allman & Associates

Phone: (214) 613-5422
Dallas, TX
Sheri Pizitz
Dave Perry-Miller & Associates

Phone: (214) 837-7950
Dallas, TX
Ambiance Realty
Ambiance Realty

Phone: (972) 382-6893
Dallas, TX
[email protected]
Featured Mortgage Brokers
- AMERICAN NATIONWIDE MORTGAGE COMPANY INC, LITTLE RIVER, SC
2220 HIGHWAY 17
LITTLE RIVER, SC 29566 - GENERATION MORTGAGE COMPANY, HILO, HI
1257 KILAUEA AVE STE 30
HILO, HI 96720 - Harvard Mortgage, mortgage broker in Albuquerque, NM
9551 Paseo del Norte NE
Albuquerque, NM 87122 - COBALT MORTGAGE, EVERETT, WA
2825 COLBY AVE STE 305
EVERETT, WA 98201 - W J BRADLEY MORTGAGE CAPITAL, LLC, PLAINFIELD, IL
2011 S ROUTE 59
PLAINFIELD, IL 60586
