Model 334 Custom
North Dallas, Texas New Homes for Sale
North Dallas, Texas New Homes for Sale
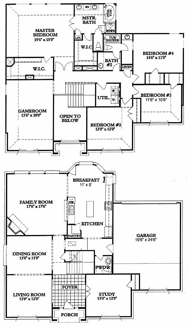
4 Bedroom, 3 Bath, 2 Car Garage
2828 - Square Feet Heat and Air
$236,990
Model 334 Custom - North Dallas, Texas New Homes for Sale
4 Bedroom, 3 Bath, 2 Car Garage
2828 - Square Feet Heat and Air
$236,990
Area: North Dallas, Texas
Enter this spacious home to both formals on the left and study on right, then into family room with fireplace. Island kitchen with breakfast area. Master bedroom upstairs with large walk-in closet, master bath with separate shower and oval tub. Huge game room for the kids or home office.
Please complete the form below to get more information on Model 334 Custom and other available new home listings from a local North Dallas, Texas Real Estate Agent
Contact a local North Dallas, TX Real Estate Agent
(Please enter all fields.)
334 Custom in North Dallas
Featured New Home
Featured Real Estate Agents
J. Pete Livingston
Realty One Group Partners

Phone: (214) 494-8778
Dallas, TX
Carolina Rendon
Allie Beth Allman & Associates

Phone: (214) 613-5422
Dallas, TX
Sheri Pizitz
Dave Perry-Miller & Associates

Phone: (214) 837-7950
Dallas, TX
Ambiance Realty
Ambiance Realty

Phone: (972) 382-6893
Dallas, TX
[email protected]
Kyle Rovinsky
Featured Mortgage Brokers
- Consolidated Loan Company of Albany- Home Office, mortgage broker in Albany, GA
430 W Tift Ave
Albany, GA 31701 - TALMER BANK & TRUST, TROY, MI
2301 W BIG BEAVER RD STE 525
TROY, MI 48084 - AMERICAN PACIFIC MORTGAGE, VISTA, CA
380 S MELROSE DR STE 203
VISTA, CA 92081 - VENTA FINANCIAL GROUP INC, LAS VEGAS, NV
1300 S JONES BLVD STE 150
LAS VEGAS, NV 89146 - INLANTA MORTGAGE, INC., OAK BROOK, IL
2803 BUTTERFIELD RD STE 130
OAK BROOK, IL 60523

