Model Garrison
Montgomery County, Texas New Homes for Sale
Montgomery County, Texas New Homes for Sale
4 Bedroom, 2.5 Bath, 2 Car Garage
$231,490
Model Garrison - Montgomery County, Texas New Homes for Sale
4 Bedroom, 2.5 Bath, 2 Car Garage
$231,490
Area: Montgomery County, Texas
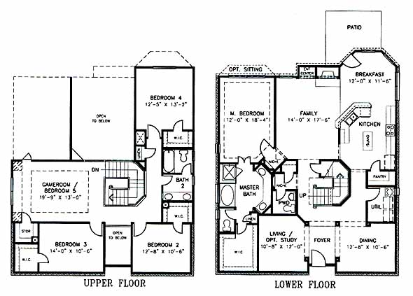
Many options with up to five bedrooms. Big long master suite downstairs. Formal living and dining area off the foyer. Big island gourmet kitchen with adjoining breakfast room that goes out onto the patio. Family room with fireplace and entertainment center. Large gameroom and 3 bedrooms are upstairs.
Please complete the form below to get more information on Model Garrison and other available new home listings from a local Montgomery County, Texas Real Estate Agent
Contact a local Montgomery County, TX Real Estate Agent
(Please enter all fields.)
Garrison in Montgomery County
Featured New Home
Featured Mortgage Brokers
- CSTONE MORTGAGE INC, SAN DIEGO, CA
4545 MURPHY CANYON RD STE 213
SAN DIEGO, CA 92123 - Harvard Mortgage, mortgage broker in Albuquerque, NM
9551 Paseo del Norte NE
Albuquerque, NM 87122 - Intercap Lending, mortgage broker in Albuquerque, NM
5600 Wyoming Blvd NE Ste 20
Albuquerque, NM 87109 - DITECH MORTGAGE CORP, FORT WASHINGTON, PA
1100 VIRGINIA DR STE 100
FORT WASHINGTON, PA 19034 - Altamont Mortgage Funding Inc, mortgage broker in Portland, OR
4380 SW Macadam Ave Ste 125
Portland, OR 97239
