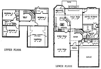
Model Eldorado
Montgomery County, Texas New Homes for Sale
Montgomery County, Texas New Homes for Sale
4 Bedroom, 2.5 Bath, 2 Car Garage
$200,990
Model Eldorado - Montgomery County, Texas New Homes for Sale
4 Bedroom, 2.5 Bath, 2 Car Garage
$200,990
Area: Montgomery County, Texas
Huge gameroom, master suite is downstairs, dramatic and open design. Stylish and convenient kitchen. Luxurious master bedroom. This community has all amenities including small forrested neighborhoods, parks and pathways.
Please complete the form below to get more information on Model Eldorado and other available new home listings from a local Montgomery County, Texas Real Estate Agent
Contact a local Montgomery County, TX Real Estate Agent
(Please enter all fields.)
Eldorado in Montgomery County
Featured New Home
Featured Mortgage Brokers
- VENTA FINANCIAL GROUP INC, LAS VEGAS, NV
1300 S JONES BLVD STE 150
LAS VEGAS, NV 89146 - REVERSE MORTGAGE SOLUTIONS INC, NEWBURGH, NY
700 CORPORATE BLVD
NEWBURGH, NY 12550 - AMERIPRO FUNDING INC, SAN ANTONIO, TX
401 E SONTERRA BLVD STE 375
SAN ANTONIO, TX 78258 - BancOhio Financial, mortgage broker in Powell, OH
285 S Liberty St
Powell, OH 43065 - Altamont Mortgage Funding Inc, mortgage broker in Portland, OR
4380 SW Macadam Ave Ste 125
Portland, OR 97239
