Model Plan 2178
Johnson County, Texas New Homes for Sale
Johnson County, Texas New Homes for Sale
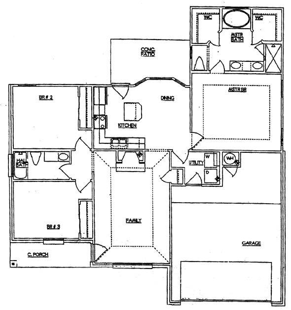
3 Bedroom, 2.5 Bath, 2 Car Garage
$160,900
Model Plan 2178 - Johnson County, Texas New Homes for Sale
3 Bedroom, 2.5 Bath, 2 Car Garage
$160,900
Area: Johnson County, Texas
Pedestal sink and elegant mirror in the 1/2 baths on the second floor. Wonderful neighborhood in suburbs of Ft. Worth.
Please complete the form below to get more information on Model Plan 2178 and other available new home listings from a local Johnson County, Texas Real Estate Agent
Contact a local Johnson County, TX Real Estate Agent
(Please enter all fields.)
Plan 2178 in Johnson County
Featured New Home
Featured Mortgage Brokers
- LEADER ONE FINANCIAL CORPORATION, OVERLAND PARK, KS
11020 KING ST STE 390
OVERLAND PARK, KS 66210 - BANK OF AMERICA NA CHARLOTTE, FOREST HILLS, NY
10510 QUEENS BLVD STE 2
FOREST HILLS, NY 11375 - CARRINGTON MORTGAGE SERVICES LLC, SANTA ANA, CA
1610 E SAINT ANDREW PL STE B-1
SANTA ANA, CA 92705 - FIRST PREFERENCE MTG CORP, BOWIE, MD
1525 POINTER RIDGE PL
BOWIE, MD 20716 - Mainstream Funding Network, Inc., mortgage broker in Williamsville, NY
5586 Main St.
Williamsville, NY 14221
Copyright © 2026 NewHomesAgents.com
