Model M-3
Williamson County, Tennessee New Homes for Sale
Williamson County, Tennessee New Homes for Sale
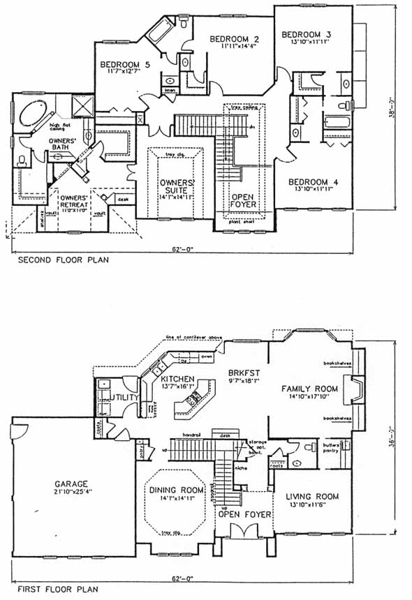
5 Bedroom, 3.5 Bath, 3 Car Garage
4907 - Square Feet
$582,890
Model M-3 - Williamson County, Tennessee New Homes for Sale
5 Bedroom, 3.5 Bath, 3 Car Garage
4907 - Square Feet
$582,890
Area: Williamson County, Tennessee
Large open 2 story foyer. Formal living and dining room, large open island kitchen with open breakfast area. Den with bookcasses & fireplace. 5 bedrooms upstairs includes 2 Jack & Jill bath setups to join 4 bedrooms. Huge master retreat with luxurious & spacious bath area.
Please complete the form below to get more information on Model M-3 and other available new home listings from a local Williamson County, Tennessee Real Estate Agent
Contact a local Williamson County, TN Real Estate Agent
(Please enter all fields.)
M-3 in Williamson County
Featured New Home
Featured Mortgage Brokers
- CrossCountry Mortgage, Inc., mortgage broker in Elgin, IL
374 N Mclean Blvd
Elgin, IL 60123 - PRIMELENDING A PLAINSCAPITAL COMPANY, INDIANAPOLIS, IN
50 E 91ST ST STE 300
INDIANAPOLIS, IN 46240 - 203K.TV, LAGUNA HILLS, CA
22501 CAMINITO COSTA
LAGUNA HILLS, CA 92653 - LIBERTY HOME EQUITY SOLUTIONS INC, STAMFORD, CT
263 TRESSER BLVD FL 9
STAMFORD, CT 6901 - Priority Mortgage Corp., mortgage broker in Worthington, OH
150 E Wilson Bridge Rd Ste 350
Worthington, OH 43085
