Model Claridge
Williamson County, Tennessee New Homes for Sale
Williamson County, Tennessee New Homes for Sale
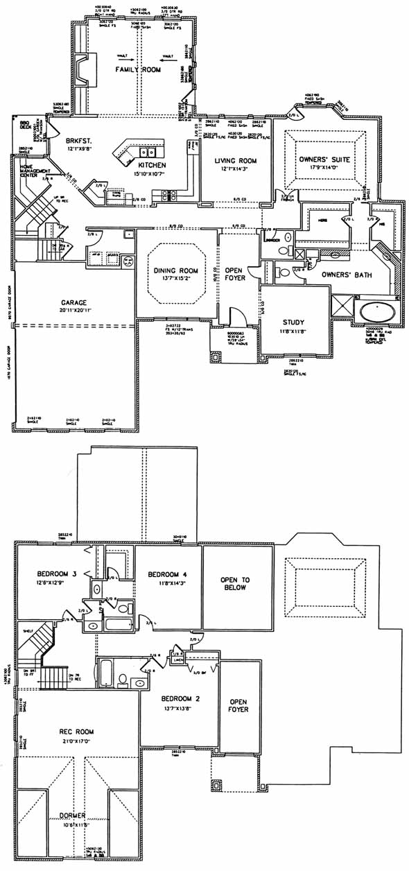
4 Bedroom, 3.5 Bath, 3 Car Garage
4500 - Square Feet
$610,390
Model Claridge - Williamson County, Tennessee New Homes for Sale
4 Bedroom, 3.5 Bath, 3 Car Garage
4500 - Square Feet
$610,390
Area: Williamson County, Tennessee
This lovely home has a split recreation room, a dramatic foyer. The most spacious master suite & bath on the first level and many other distinctive features. The large gourmet island kitchen has a breakfast room and is open to the family room. Trey ceilings in the owner's suite & dining room add beauty and the private library/study is a lovely retreat.
Please complete the form below to get more information on Model Claridge and other available new home listings from a local Williamson County, Tennessee Real Estate Agent
Contact a local Williamson County, TN Real Estate Agent
(Please enter all fields.)
Claridge in Williamson County
Featured New Home
Featured Mortgage Brokers
- CSTONE MORTGAGE INC, SAN DIEGO, CA
4545 MURPHY CANYON RD STE 213
SAN DIEGO, CA 92123 - PRIMARY RESIDENTIAL MORTGAGE INC, SAN FRANCISCO, CA
1746 18TH ST
SAN FRANCISCO, CA 94107 - ADVISORS MORTGAGE GROUP LLC, TURNERSVILLE, NJ
4991 BLACK HORSE PIKE
TURNERSVILLE, NJ 8012 - Mainstream Funding Network, Inc., mortgage broker in Williamsville, NY
5586 Main St.
Williamsville, NY 14221 - RESIDENTIAL HOME FUNDING CORPORATION, BLUE BELL, PA
1787 SENTRY PKWY W BLDG 18-130
BLUE BELL, PA 19422
