Model Scarborough A
Williamson County, Tennessee New Homes for Sale
Williamson County, Tennessee New Homes for Sale
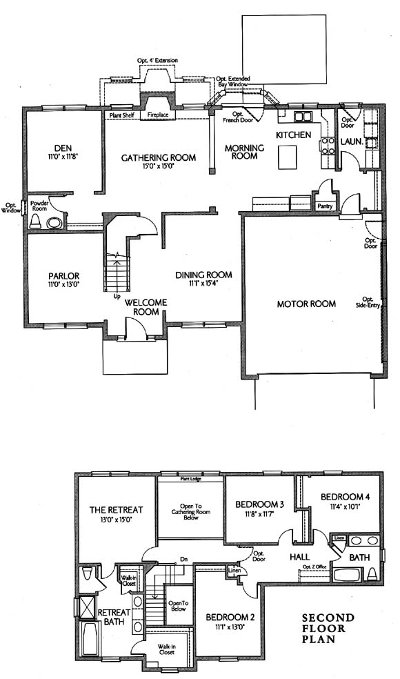
4 Bedroom, 2.5 Bath, 2 Car Garage
2695 - Square Feet
$281,490
Model Scarborough A - Williamson County, Tennessee New Homes for Sale
4 Bedroom, 2.5 Bath, 2 Car Garage
2695 - Square Feet
$281,490
Area: Williamson County, Tennessee
Beautiful home with formal parlor, dining room and first floor den. Two-story gathering room opens to gourmet kitchen and morning room with the eleganet owner's retreat finishing the first floor. Upstairs find bed, bath and bonus room.
Please complete the form below to get more information on Model Scarborough A and other available new home listings from a local Williamson County, Tennessee Real Estate Agent
Contact a local Williamson County, TN Real Estate Agent
(Please enter all fields.)
Scarborough A in Williamson County
Featured New Home
Featured Mortgage Brokers
- CrossCountry Mortgage, Inc., mortgage broker in Elgin, IL
374 N Mclean Blvd
Elgin, IL 60123 - FIRST HERITAGE FINANCIAL, LLC, TREVOSE, PA
2655 NESHAMINY INTERPLEX DR
TREVOSE, PA 19053 - RESIDENTIAL HOME FUNDING CORPORATION, BLUE BELL, PA
1787 SENTRY PKWY W BLDG 18-130
BLUE BELL, PA 19422 - AMERICAN PACIFIC MORTGAGE, VISTA, CA
380 S MELROSE DR STE 203
VISTA, CA 92081 - BANK OF NORTH CAROLINA, CHARLOTTE, NC
7422 CARMEL EXECUTIVE PARK DR
CHARLOTTE, NC 28226
