Model Franklin II
Williamson County, Tennessee New Homes for Sale
Williamson County, Tennessee New Homes for Sale
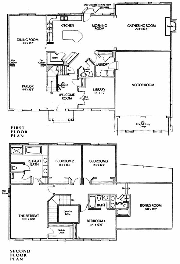
4 Bedroom, 3.5 Bath, 3 Car Garage
3500 - Square Feet
$396,000
Model Franklin II - Williamson County, Tennessee New Homes for Sale
4 Bedroom, 3.5 Bath, 3 Car Garage
3500 - Square Feet
$396,000
Area: Williamson County, Tennessee
Spacious gathering room with designer windows, cozy fireplace and convenient second staircase option. Charming morning room and deluxe kitchen with convenient breakfast bar. Private library with optional french doors. Elegant owner's retreat features luxury bath. Three additional bedrooms, two full baths and bonus room on second floor.
Please complete the form below to get more information on Model Franklin II and other available new home listings from a local Williamson County, Tennessee Real Estate Agent
Contact a local Williamson County, TN Real Estate Agent
(Please enter all fields.)
Franklin II in Williamson County
Featured New Home
Featured Mortgage Brokers
- AMERICAN FINANCIAL NETWORK INC, MURRIETA, CA
24910 WASHINGTON AVE
MURRIETA, CA 92562 - Consolidated Loan Company of Albany- Home Office, mortgage broker in Albany, GA
430 W Tift Ave
Albany, GA 31701 - PROFICIO MORTGAGE VENTURES LLC, BRUNSWICK, OH
2950 WESTWAY DR STE 101
BRUNSWICK, OH 44212 - PRYSMA LENDING GROUP LLC, DANBURY, CT
10 PRECISION RD STE 2B
DANBURY, CT 6810 - PRIMELENDING A PLAINSCAPITAL COMPANY, NORTH SYRACUSE, NY
6702 BUCKLEY RD STE 140
NORTH SYRACUSE, NY 13212
