Model Hickory II
Williamson County, Tennessee New Homes for Sale
Williamson County, Tennessee New Homes for Sale
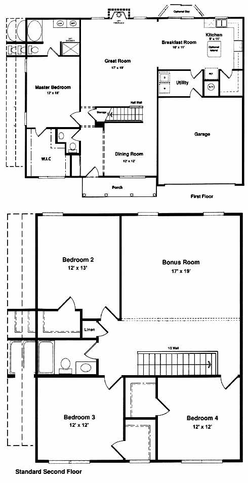
4 Bedroom, 2.5 Bath, 2 Car Garage
2542
$196,900
Model Hickory II - Williamson County, Tennessee New Homes for Sale
4 Bedroom, 2.5 Bath, 2 Car Garage
2542
$196,900
Area: Williamson County, Tennessee
Rolling hills and a country setting make this a nice community for raising a family. Landscaped single-family homes with underground utilities and sidewalks throughout.
First-floor master bedroom includes an oversized walk-in closet and master bath with double vanity, tub and separate shower. A formal dining room is located to one side of the foyer entrance. The great room in the back is a nice area for entertaining guests and has an optional fireplace available. The breakfast room leads to the kitchen with walk-in pantry and optional island workspace. The second floor has three more bedrooms, a shared bath and a large bonus room.
Please complete the form below to get more information on Model Hickory II and other available new home listings from a local Williamson County, Tennessee Real Estate Agent
Contact a local Williamson County, TN Real Estate Agent
(Please enter all fields.)
Hickory II in Williamson County
Featured New Home
Featured Mortgage Brokers
- NEIGHBORS FINANCIAL CORP, SACRAMENTO, CA
2831 G ST STE 200
SACRAMENTO, CA 95816 - TOP FLITE FINANCIAL INC, WATERFORD, MI
5663 HIGHLAND RD
WATERFORD, MI 48327 - Altamont Mortgage Funding Inc, mortgage broker in Portland, OR
4380 SW Macadam Ave Ste 125
Portland, OR 97239 - PRIMARY RESIDENTIAL MORTGAGE INC, MIAMI, FL
7300 N KENDALL DR STE 340
MIAMI, FL 33156 - NORTHWEST MORTGAGE GROUP INC, PORTLAND, OR
10260 SW GREENBURG RD STE 900
PORTLAND, OR 97223
