Model Juniper III
Williamson County, Tennessee New Homes for Sale
Williamson County, Tennessee New Homes for Sale
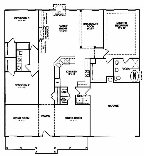
3 Bedroom, 2 Bath, 2 Car Garage
2280 Square Feet
$185,900
Model Juniper III - Williamson County, Tennessee New Homes for Sale
3 Bedroom, 2 Bath, 2 Car Garage
2280 Square Feet
$185,900
Area: Williamson County, Tennessee
Rolling hills and a country setting make this a nice community for raising a family. Landscaped single-family homes with underground utilities and sidewalks throughout.
Split plan featuring a large master bedroom with walk-in closet, tray ceiling and private bath. Two bedrooms on the opposite side of the home share a bath between them. Formal living and dining rooms are located on either side of the foyer entrance. The kitchen has a walk-in pantry and plenty of counter space for preparing meals while the nearby breakfast room overlooks the family room with optional fireplace. Plenty of options and upgrades are available.
Please complete the form below to get more information on Model Juniper III and other available new home listings from a local Williamson County, Tennessee Real Estate Agent
Contact a local Williamson County, TN Real Estate Agent
(Please enter all fields.)
Juniper III in Williamson County
Featured New Home
Featured Mortgage Brokers
- HIGH TECH LENDING INC, CITRUS HEIGHTS, CA
7777 GREENBACK LN STE 210
CITRUS HEIGHTS, CA 95610 - Priority Mortgage Corp., mortgage broker in Worthington, OH
150 E Wilson Bridge Rd Ste 350
Worthington, OH 43085 - W J BRADLEY MORTGAGE CAPITAL, LLC, PLAINFIELD, IL
2011 S ROUTE 59
PLAINFIELD, IL 60586 - M/I Financial, LLC, mortgage broker in Columbus, OH
3 Easton Oval Ste 340
Columbus, OH 43219 - Ross Mortgage Corporation, mortgage broker in Royal Oak, MI
27862 Woodward Avenue
Royal Oak, MI 48067
