Model Manchester
Williamson County, Tennessee New Homes for Sale
Williamson County, Tennessee New Homes for Sale
4 Bedroom, 3.5 Bath, 3 Car Garage
4735
$659,900
Model Manchester - Williamson County, Tennessee New Homes for Sale
4 Bedroom, 3.5 Bath, 3 Car Garage
4735
$659,900
Area: Williamson County, Tennessee
Nestled in the rolling hills of Tennessee, on more than 600 unspoiled acres, lies one of the most prestigious addresses in the Southeast. Find the good life, the peace of mind of a guard gated community, magnificent golf course and custom estate homes. Amenities include a social clubhouse, swim and tennis club, children's play park, walking trails and a fishing lake. Picturesque golf course with stacked stone walls and waterfalls add to the beauty and elegance of this community.
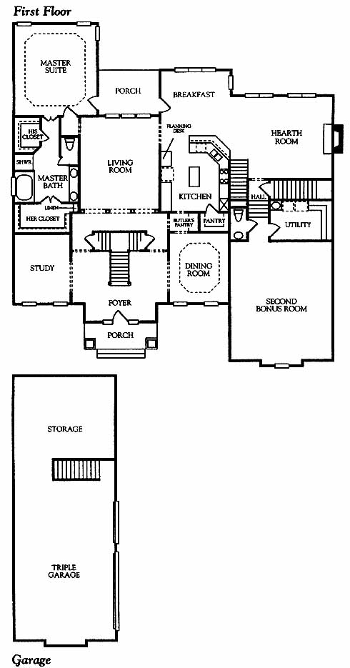
Formal dining room and study are on either side of the foyer entrance. The living room at the back has windows that look out to the porch. The gourmet kitchen includes an island workspace, a planning desk and a walk-in pantry while overlooking the breakfast area. Relax on weekends in the hearth room with fireplace. The first-floor master suite includes his and her walk-in closets and a master bath with dual vanity, tub and separate shower. The second floor has three more bedrooms, including one with a private bath. The game room will keep the kids entertained on rainy days.
Please complete the form below to get more information on Model Manchester and other available new home listings from a local Williamson County, Tennessee Real Estate Agent
Contact a local Williamson County, TN Real Estate Agent
(Please enter all fields.)
Manchester in Williamson County
Featured New Home
Featured Mortgage Brokers
- Consolidated Loan Company of Albany- Home Office, mortgage broker in Albany, GA
430 W Tift Ave
Albany, GA 31701 - MOVEMENT MORTGAGE LLC, COLUMBIA, SC
1129 SPARKLEBERRY LANE EXT
COLUMBIA, SC 29223 - REVERSE MORTGAGE SOLUTIONS INC, BETHESDA, MD
6701 DEMOCRACY BLVD STE 300
BETHESDA, MD 20817 - ACADEMY MORTGAGE CORPORATION, CINCINNATI, OH
11590 CENTURY BLVD STE 112
CINCINNATI, OH 45246 - CATALYST LENDING INC, GREENWOOD VILLAGE, CO
6530 S YOSEMITE ST STE 310
GREENWOOD VILLAGE, CO 80111
