Model McKendree C
Williamson County, Tennessee New Homes for Sale
Williamson County, Tennessee New Homes for Sale
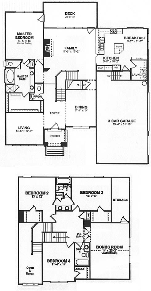
4 Bedroom, 3.5 Bath, 3 Car Garage
3191 Square Feet
$368,900
Model McKendree C - Williamson County, Tennessee New Homes for Sale
4 Bedroom, 3.5 Bath, 3 Car Garage
3191 Square Feet
$368,900
Area: Williamson County, Tennessee
Beautiful community in Nashville's hottest area Brentwood! Quiet upscale living located just minutes from Cool Springs Mall and I-65. The community offers the highly desired Brentwood schools with the newly opened Ravenwood High and Middle Schools. 1/2+ acre homesites, 3-car side entry garages and amenities such as an junior Olympic size pool and underground facilities complete the community's family oriented atmosphere.
Enjoy this beautiful home featuring a 2-stoyer foyer, formal dining room, living room and large family room. The master is on the main level, there area walk in closets in every bedroom and a vaulted bonus room.
Please complete the form below to get more information on Model McKendree C and other available new home listings from a local Williamson County, Tennessee Real Estate Agent
Contact a local Williamson County, TN Real Estate Agent
(Please enter all fields.)
McKendree C in Williamson County
Featured New Home
Featured Mortgage Brokers
- PRIMARY RESIDENTIAL MORTGAGE INC, SAN FRANCISCO, CA
1746 18TH ST
SAN FRANCISCO, CA 94107 - GATEWAY FUNDING DIVERSIFIED MTG SRVS LP, CARMEL, IN
600 E CARMEL DR STE 169
CARMEL, IN 46032 - AMERICAN NATIONWIDE MORTGAGE COMPANY INC, LITTLE RIVER, SC
2220 HIGHWAY 17
LITTLE RIVER, SC 29566 - FIRST PREFERENCE MTG CORP, BOWIE, MD
1525 POINTER RIDGE PL
BOWIE, MD 20716 - BANK OF AMERICA NA CHARLOTTE, FOREST HILLS, NY
10510 QUEENS BLVD STE 2
FOREST HILLS, NY 11375
