Model Meredith
Williamson County, Tennessee New Homes for Sale
Williamson County, Tennessee New Homes for Sale
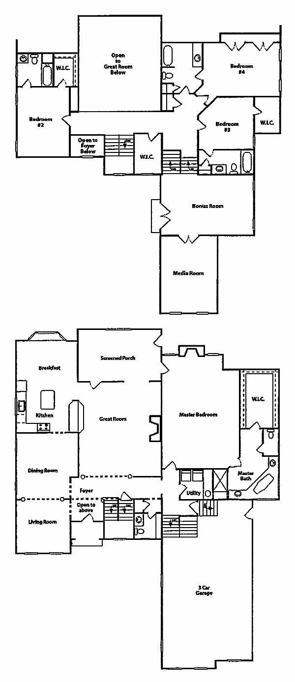
4 Bedroom, 4.5 Bath, 3 Car Garage
4282 - Square Feet
$614,900
Model Meredith - Williamson County, Tennessee New Homes for Sale
4 Bedroom, 4.5 Bath, 3 Car Garage
4282 - Square Feet
$614,900
Area: Williamson County, Tennessee
This beautiful home has four bedrooms, four and a half baths with the master suite located on the first floor. The bonus room and media rooms are upstairs with three other bedrooms. Both the master bedroom and great room have fireplaces. The screened porch is off the great room and the master bedroom.
Please complete the form below to get more information on Model Meredith and other available new home listings from a local Williamson County, Tennessee Real Estate Agent
Contact a local Williamson County, TN Real Estate Agent
(Please enter all fields.)
Meredith in Williamson County
Featured New Home
Featured Mortgage Brokers
- CHARTER WEST NATIONAL BANK, GRAND ISLAND, NE
714 N DIERS AVE
GRAND ISLAND, NE 68803 - AMERICAN PACIFIC MORTGAGE, VISTA, CA
380 S MELROSE DR STE 203
VISTA, CA 92081 - TOP FLITE FINANCIAL INC, FORT LAUDERDALE, FL
33 NE 2ND ST STE 100
FORT LAUDERDALE, FL 33301 - PINNACLE CAPITAL MORTGAGE CORPORATION, PUYALLUP, WA
311 RIVER RD STE 202
PUYALLUP, WA 98371 - GUARANTEED RATE INC, PARSIPPANY, NJ
322 ROUTE 46 STE 170
PARSIPPANY, NJ 7054
