Model Chatham
Williamson County, Tennessee New Homes for Sale
Williamson County, Tennessee New Homes for Sale
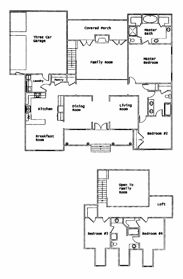
4 Bedroom, 4.5 Bath, 3 Car Garage
3975 - Square Feet
$538,890
Model Chatham - Williamson County, Tennessee New Homes for Sale
4 Bedroom, 4.5 Bath, 3 Car Garage
3975 - Square Feet
$538,890
Area: Williamson County, Tennessee
Formal living room. Master plus other bedroom downstairs. Kitchen with breakfast room. Den with fireplace. Full basement. Wonderful childrens study upstairs. Built on an acre lot.
Please complete the form below to get more information on Model Chatham and other available new home listings from a local Williamson County, Tennessee Real Estate Agent
Contact a local Williamson County, TN Real Estate Agent
(Please enter all fields.)
Chatham in Williamson County
Featured New Home
Featured Mortgage Brokers
- AMERICAN NATIONWIDE MORTGAGE COMPANY INC, LITTLE RIVER, SC
2220 HIGHWAY 17
LITTLE RIVER, SC 29566 - Altamont Mortgage Funding Inc, mortgage broker in Portland, OR
4380 SW Macadam Ave Ste 125
Portland, OR 97239 - TOP FLITE FINANCIAL INC, FORT LAUDERDALE, FL
33 NE 2ND ST STE 100
FORT LAUDERDALE, FL 33301 - REVERSE MORTGAGE SOLUTIONS INC, NEWBURGH, NY
700 CORPORATE BLVD
NEWBURGH, NY 12550 - PRIMELENDING A PLAINSCAPITAL COMPANY, HIBBING, MN
2900 E BELTLINE STE 5
HIBBING, MN 55746
