Model Dogwood
Williamson County, Tennessee New Homes for Sale
Williamson County, Tennessee New Homes for Sale
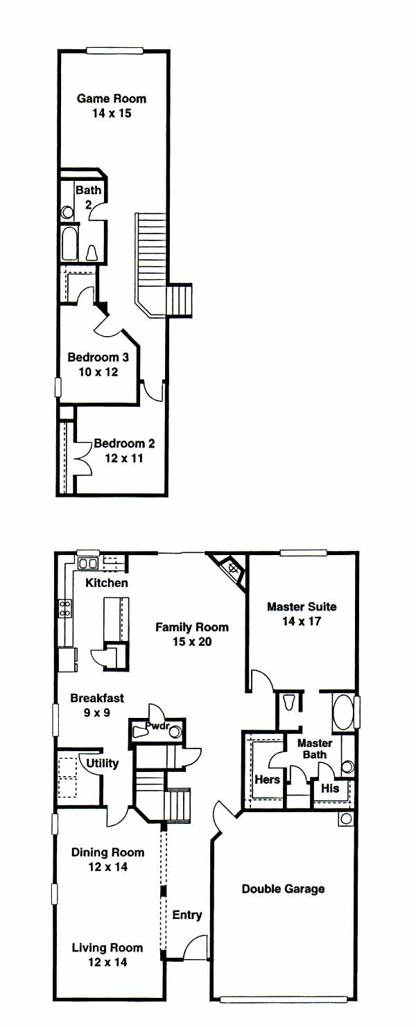
3 Bedroom, 2.5 Bath, 2 Car Garage
2514 - Square Feet
$242,715
Model Dogwood - Williamson County, Tennessee New Homes for Sale
3 Bedroom, 2.5 Bath, 2 Car Garage
2514 - Square Feet
$242,715
Area: Williamson County, Tennessee
Great open plan. Formal living and dining rooms off of the entry. Master suite downstairs, dual walk-in closets. Kitchen with breakfast room and open to the den with fireplace. Game room. Optional study, and fourth bedroom upstairs with a full bath.
Please complete the form below to get more information on Model Dogwood and other available new home listings from a local Williamson County, Tennessee Real Estate Agent
Contact a local Williamson County, TN Real Estate Agent
(Please enter all fields.)
Dogwood in Williamson County
Featured New Home
Featured Mortgage Brokers
- FIRST PRIORITY FINANCIAL INC, BENICIA, CA
1350 HAYES ST STE C14
BENICIA, CA 94510 - VENTA FINANCIAL GROUP INC, LAS VEGAS, NV
1300 S JONES BLVD STE 150
LAS VEGAS, NV 89146 - ACADEMY MORTGAGE CORPORATION, CINCINNATI, OH
11590 CENTURY BLVD STE 112
CINCINNATI, OH 45246 - RESIDENTIAL HOME FUNDING CORPORATION, BLUE BELL, PA
1787 SENTRY PKWY W BLDG 18-130
BLUE BELL, PA 19422 - TOP FLITE FINANCIAL INC, FORT LAUDERDALE, FL
33 NE 2ND ST STE 100
FORT LAUDERDALE, FL 33301
