Model Cypress
Williamson County, Tennessee New Homes for Sale
Williamson County, Tennessee New Homes for Sale
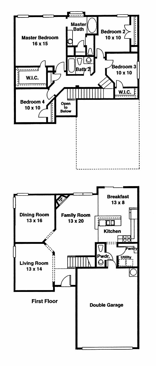
4 Bedroom, 2.5 Bath, 2 Car Garage
2092 - Square Feet
$235,510
Model Cypress - Williamson County, Tennessee New Homes for Sale
4 Bedroom, 2.5 Bath, 2 Car Garage
2092 - Square Feet
$235,510
Area: Williamson County, Tennessee
Two story foyer, open den and kitchen with pantry. Breakfast room off of the kitchen. Formal dining room. Master bedroom with a large walk-in closet. Luxury bath option.
Please complete the form below to get more information on Model Cypress and other available new home listings from a local Williamson County, Tennessee Real Estate Agent
Contact a local Williamson County, TN Real Estate Agent
(Please enter all fields.)
Cypress in Williamson County
Featured New Home
Featured Mortgage Brokers
- PRIMARY RESIDENTIAL MORTGAGE INC, BALTIMORE, MD
1816 ALICEANNA ST # B
BALTIMORE, MD 21231 - FIRST PREFERENCE MTG CORP, BOWIE, MD
1525 POINTER RIDGE PL
BOWIE, MD 20716 - FIRST HERITAGE FINANCIAL, LLC, TREVOSE, PA
2655 NESHAMINY INTERPLEX DR
TREVOSE, PA 19053 - MOVEMENT MORTGAGE LLC, COLUMBIA, SC
1129 SPARKLEBERRY LANE EXT
COLUMBIA, SC 29223 - VENTA FINANCIAL GROUP INC, LAS VEGAS, NV
1300 S JONES BLVD STE 150
LAS VEGAS, NV 89146
