Model Montgomery
Sumner County, Tennessee New Homes for Sale
Sumner County, Tennessee New Homes for Sale
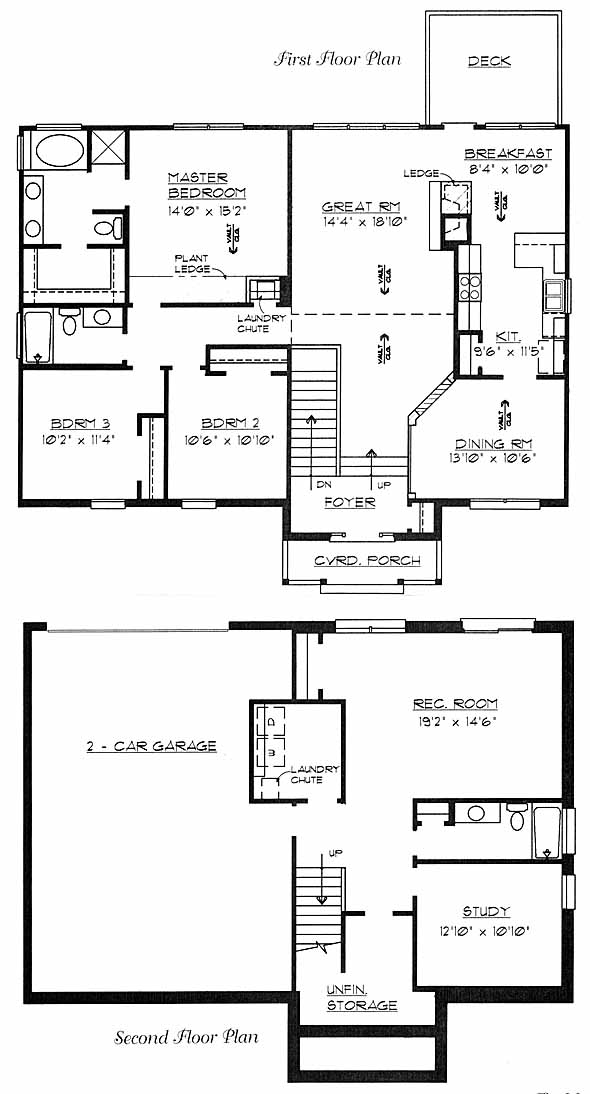
3 Bedroom, 3 Bath, 2 Car Garage
2458 - Square Feet
$213,290
Model Montgomery - Sumner County, Tennessee New Homes for Sale
3 Bedroom, 3 Bath, 2 Car Garage
2458 - Square Feet
$213,290
Area: Sumner County, Tennessee
This home has a roomy and flexible design offering recreational room, vaulted ceilings, laundry chute, and an ideal in-law or teen suite downstairs. The garage has plentiful storage and workshop space.
Please complete the form below to get more information on Model Montgomery and other available new home listings from a local Sumner County, Tennessee Real Estate Agent
Contact a local Sumner County, TN Real Estate Agent
(Please enter all fields.)
Montgomery in Sumner County
Featured New Home
Featured Mortgage Brokers
- AMERICAN NATIONWIDE MORTGAGE COMPANY INC, LITTLE RIVER, SC
2220 HIGHWAY 17
LITTLE RIVER, SC 29566 - WELLS FARGO BANK NA, DES MOINES, IA
1 HOME CAMPUS # 4801-196
DES MOINES, IA 50328 - RESIDENTIAL HOME FUNDING CORPORATION, BLUE BELL, PA
1787 SENTRY PKWY W BLDG 18-130
BLUE BELL, PA 19422 - M/I Financial, LLC, mortgage broker in Columbus, OH
3 Easton Oval Ste 340
Columbus, OH 43219 - PROFICIO MORTGAGE VENTURES LLC, BRUNSWICK, OH
2950 WESTWAY DR STE 101
BRUNSWICK, OH 44212
