Model Westchester
Rutherford County, Tennessee New Homes for Sale
Rutherford County, Tennessee New Homes for Sale
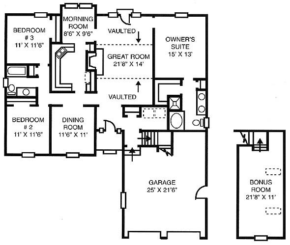
3 Bedroom, 2 Bath, 2 Car Garage
1941 - Square Feet
$202,010
Model Westchester - Rutherford County, Tennessee New Homes for Sale
3 Bedroom, 2 Bath, 2 Car Garage
1941 - Square Feet
$202,010
Area: Rutherford County, Tennessee
Super plan with split bedrooms and bonus over the garage that would make a perfect computer room or office. Formal dining room and open, vaulted great room make this a very livable plan.
Please complete the form below to get more information on Model Westchester and other available new home listings from a local Rutherford County, Tennessee Real Estate Agent
Contact a local Rutherford County, TN Real Estate Agent
(Please enter all fields.)
Westchester in Rutherford County
Featured New Home
Featured Mortgage Brokers
- RESIDENTIAL HOME FUNDING CORPORATION, BLUE BELL, PA
1787 SENTRY PKWY W BLDG 18-130
BLUE BELL, PA 19422 - DITECH MORTGAGE CORP, FORT WASHINGTON, PA
1100 VIRGINIA DR STE 100
FORT WASHINGTON, PA 19034 - CASTLE & COOKE MORTGAGE LLC, GREENWOOD VILLAGE, CO
7400 E ORCHARD RD # 2900N
GREENWOOD VILLAGE, CO 80111 - WESTSTAR MORTGAGE CORP, TUMWATER, WA
2620 R W JOHNSON RD SW # 104
TUMWATER, WA 98512 - LIBERTY HOME EQUITY SOLUTIONS INC, STAMFORD, CT
263 TRESSER BLVD FL 9
STAMFORD, CT 6901
