Model Martha Jo
Rutherford County, Tennessee New Homes for Sale
Rutherford County, Tennessee New Homes for Sale
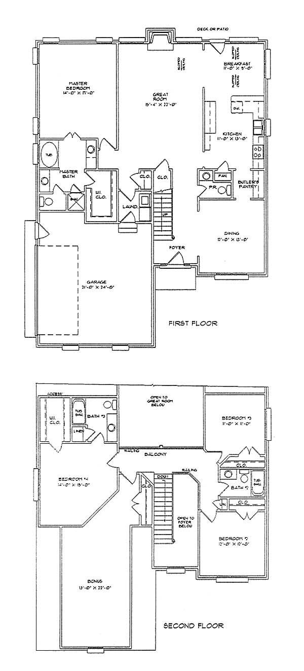
4 Bedroom, 3.5 Bath, 2 Car Garage
2755 - Square Feet
$261,239
Model Martha Jo - Rutherford County, Tennessee New Homes for Sale
4 Bedroom, 3.5 Bath, 2 Car Garage
2755 - Square Feet
$261,239
Area: Rutherford County, Tennessee
Beautiful planned community. Less than a mile to Interstate 24, three miles to major shopping center, pharmacy and strip mall in the area. Beautiful wooded lots. Some basement homes. Swimming pool and other amenities not open but in progress. The master suite on the first floor includes a bath with garden tub, separate shower, double vanity and large walk-in closet. Kitchen centers between breakfast room and formal dining. Upstairs two large bedrooms share a bath on the hall, while the fourth bedroom has its own private, full bath. Plus, a large bonus room!
Please complete the form below to get more information on Model Martha Jo and other available new home listings from a local Rutherford County, Tennessee Real Estate Agent
Contact a local Rutherford County, TN Real Estate Agent
(Please enter all fields.)
Martha Jo in Rutherford County
Featured New Home
Featured Mortgage Brokers
- HIGH TECH LENDING INC, CITRUS HEIGHTS, CA
7777 GREENBACK LN STE 210
CITRUS HEIGHTS, CA 95610 - GENERATION MORTGAGE COMPANY, ATLANTA, GA
3 PIEDMONT CTR NE STE 300
ATLANTA, GA 30305 - AMERICAN BANK, ROCKVILLE, MD
9201 CORPORATE BLVD STE 130
ROCKVILLE, MD 20850 - AMERICAN MIDWEST MTG CORP, CLEVELAND, OH
6363 YORK RD STE 300
CLEVELAND, OH 44130 - FIRST HERITAGE FINANCIAL, LLC, TREVOSE, PA
2655 NESHAMINY INTERPLEX DR
TREVOSE, PA 19053
