Model Parker
Rutherford County, Tennessee New Homes for Sale
Rutherford County, Tennessee New Homes for Sale
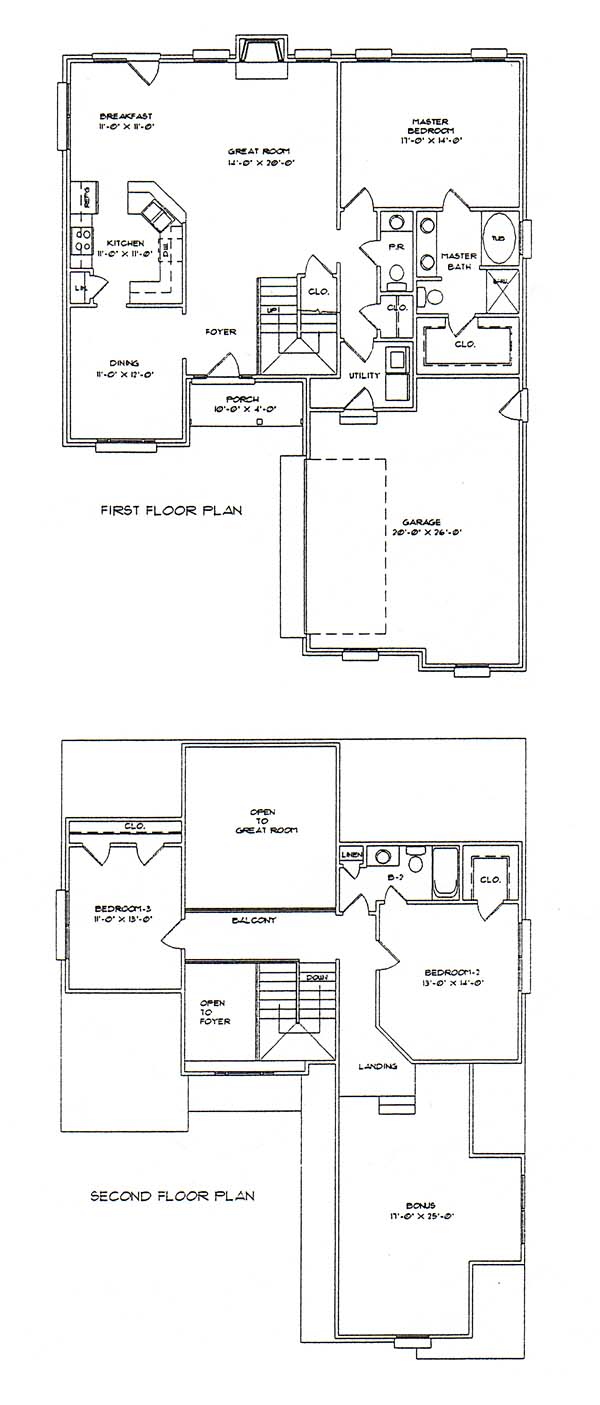
3 Bedroom, 2.5 Bath, 2 Car Garage
2342 - Square Feet
$228,569
Model Parker - Rutherford County, Tennessee New Homes for Sale
3 Bedroom, 2.5 Bath, 2 Car Garage
2342 - Square Feet
$228,569
Area: Rutherford County, Tennessee
Beautiful planned community. Less than a mile to Interstate 24, three miles to major shopping center, pharmacy and strip mall in the area. Beautiful wooded lots. Some basement homes. Swimming pool and other amenities not open but in progress. Great floor plan. Three large bedrooms with master suite on the first floor. The master suite bath has garden tub, separate shower, double vanity and large walk-in closet. Kitchen centers between breakfast room and formal dining. Great room with optional fireplace. Upstairs other bedrooms, full bath and large bonus room.
Please complete the form below to get more information on Model Parker and other available new home listings from a local Rutherford County, Tennessee Real Estate Agent
Contact a local Rutherford County, TN Real Estate Agent
(Please enter all fields.)
Parker in Rutherford County
Featured New Home
Featured Mortgage Brokers
- ACADEMY MORTGAGE CORPORATION, CHICO, CA
1600 MANGROVE AVE STE 100
CHICO, CA 95926 - WELLS FARGO BANK NA, DES MOINES, IA
1 HOME CAMPUS # 4801-196
DES MOINES, IA 50328 - CARRINGTON MORTGAGE SERVICES LLC, SANTA ANA, CA
1610 E SAINT ANDREW PL STE B-1
SANTA ANA, CA 92705 - REVERSE MORTGAGE SOLUTIONS INC, BETHESDA, MD
6701 DEMOCRACY BLVD STE 300
BETHESDA, MD 20817 - SYNOVUS MORTGAGE CORP, ROSWELL, GA
10446 ALPHARETTA ST
ROSWELL, GA 30075
