Model Wessex
Murfreesboro, Tennessee New Homes for Sale
Murfreesboro, Tennessee New Homes for Sale
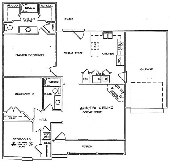
3 Bedroom, 2 Bath, 1 Car Garage
1282 - Square Feet
$130,680
Model Wessex - Murfreesboro, Tennessee New Homes for Sale
3 Bedroom, 2 Bath, 1 Car Garage
1282 - Square Feet
$130,680
Area: Murfreesboro, Tennessee
This is a great plan for easy living. You'll love the convenience of the kitchen and dining areas. The master suite has a full bath and his and hers walk-in closets.
Please complete the form below to get more information on Model Wessex and other available new home listings from a local Murfreesboro, Tennessee Real Estate Agent
Contact a local Murfreesboro, TN Real Estate Agent
(Please enter all fields.)
Wessex in Murfreesboro
Featured New Home
Featured Real Estate Agents
Ann Hoke
Ann Hoke and Assoc. Keller Williams

Phone: (615) 397-4024
Murfreesboro, TN
Chris Garrett SRS, SFR
Century 21 United Realty

Phone: (615) 475-7430
Murfreesboro, TN
[email protected]
Courtney Yates
Keller Williams Realty

Phone: (855) 912-9058
Murfreesboro, TN
Valerie Nicgorski
Parks

Phone: (615) 785-4572
Murfreesboro, TN
[email protected]
John C Jones
John Jones Real Estate

Phone: (615) 867-3020
Murfreesboro, TN
[email protected]
Featured Mortgage Brokers
- Ross Mortgage Corporation, mortgage broker in Royal Oak, MI
27862 Woodward Avenue
Royal Oak, MI 48067 - BANK OF AMERICA NA CHARLOTTE, FOREST HILLS, NY
10510 QUEENS BLVD STE 2
FOREST HILLS, NY 11375 - American Finance-Thomasville, mortgage broker in Thomasville, GA
15179 US Hwy 19 South
Thomasville, GA 31792 - TOP FLITE FINANCIAL INC, WEST LINN, OR
1800 BLANKENSHIP RD STE 200
WEST LINN, OR 97068 - FIRST HERITAGE FINANCIAL, LLC, TREVOSE, PA
2655 NESHAMINY INTERPLEX DR
TREVOSE, PA 19053
