Model Smithson
Murfreesboro, Tennessee New Homes for Sale
Murfreesboro, Tennessee New Homes for Sale
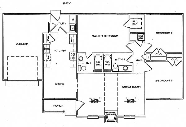
3 Bedroom, 2 Bath, 1 Car Garage
1210 - Square Feet
$125,840
Model Smithson - Murfreesboro, Tennessee New Homes for Sale
3 Bedroom, 2 Bath, 1 Car Garage
1210 - Square Feet
$125,840
Area: Murfreesboro, Tennessee
This one story home features three bedrooms, including a master suite with full bath and walk-in closet. Large great room with sloped ceilings and an optional fireplace. Separate dining room located just off of the kitchen.
Please complete the form below to get more information on Model Smithson and other available new home listings from a local Murfreesboro, Tennessee Real Estate Agent
Contact a local Murfreesboro, TN Real Estate Agent
(Please enter all fields.)
Smithson in Murfreesboro
Featured New Home
Featured Real Estate Agents
George Weeks
RE/MAX Elite

Phone: (615) 454-9277
Murfreesboro, TN
Courtney Yates
Keller Williams Realty

Phone: (855) 912-9058
Murfreesboro, TN
Chris Garrett SRS, SFR
Century 21 United Realty

Phone: (615) 475-7430
Murfreesboro, TN
[email protected]
Bud George
Bob Parks Realty, LLC

Phone: (615) 513-1173
Murfreesboro, TN
[email protected]
John C Jones
John Jones Real Estate

Phone: (615) 867-3020
Murfreesboro, TN
[email protected]
Featured Mortgage Brokers
- M/I Financial, LLC, mortgage broker in Columbus, OH
3 Easton Oval Ste 340
Columbus, OH 43219 - WESTSTAR MORTGAGE CORP, TUMWATER, WA
2620 R W JOHNSON RD SW # 104
TUMWATER, WA 98512 - HOMESTAR FINANCIAL CORPORATION, WINDER, GA
133 W ATHENS ST STE I
WINDER, GA 30680 - INDEPENDENT BANK, MT PLEASANT, MI
319 E BROADWAY ST
MT PLEASANT, MI 48858 - BancOhio Financial, mortgage broker in Powell, OH
285 S Liberty St
Powell, OH 43065
