Model Morecroft II
Murfreesboro, Tennessee New Homes for Sale
Murfreesboro, Tennessee New Homes for Sale
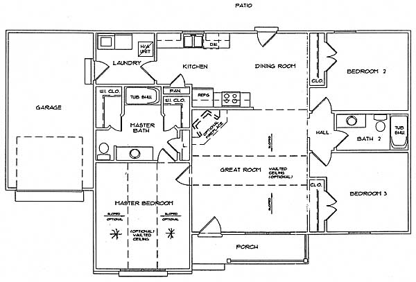
3 Bedroom, 2 Bath, 1 Car Garage
1290 - Square Feet
$129,470
Model Morecroft II - Murfreesboro, Tennessee New Homes for Sale
3 Bedroom, 2 Bath, 1 Car Garage
1290 - Square Feet
$129,470
Area: Murfreesboro, Tennessee
You enter this home into the great room with an optional fireplace. Split floor plan for privacy in the master suite. The master suite has his and hers walk-in closets. The kitchen, dining room and laundry are all located in the back of the home. Built in a planned community just minutes from the heart of Nashville. Easy access to shopping and schools.
Please complete the form below to get more information on Model Morecroft II and other available new home listings from a local Murfreesboro, Tennessee Real Estate Agent
Contact a local Murfreesboro, TN Real Estate Agent
(Please enter all fields.)
Morecroft II in Murfreesboro
Featured New Home
Featured Real Estate Agents
John C Jones
John Jones Real Estate

Phone: (615) 867-3020
Murfreesboro, TN
[email protected]
Courtney Yates
Keller Williams Realty

Phone: (855) 912-9058
Murfreesboro, TN
Chris Garrett SRS, SFR
Century 21 United Realty

Phone: (615) 475-7430
Murfreesboro, TN
[email protected]
George Weeks
RE/MAX Elite

Phone: (615) 454-9277
Murfreesboro, TN
Valerie Nicgorski
Parks

Phone: (615) 785-4572
Murfreesboro, TN
[email protected]
Featured Mortgage Brokers
- PRIMELENDING A PLAINSCAPITAL COMPANY, GLEN ALLEN, VA
4198 COX RD STE 113
GLEN ALLEN, VA 23060 - Consolidated Loan Company of Albany- Home Office, mortgage broker in Albany, GA
430 W Tift Ave
Albany, GA 31701 - FIRST PRIORITY FINANCIAL INC, ROSEVILLE, CA
1050 OPPORTUNITY DR STE 145
ROSEVILLE, CA 95678 - CrossCountry Mortgage, Inc., mortgage broker in Elgin, IL
374 N Mclean Blvd
Elgin, IL 60123 - CATALYST LENDING INC, GREENWOOD VILLAGE, CO
6530 S YOSEMITE ST STE 310
GREENWOOD VILLAGE, CO 80111
