Model Schrewsbury
Murfreesboro, Tennessee New Homes for Sale
Murfreesboro, Tennessee New Homes for Sale
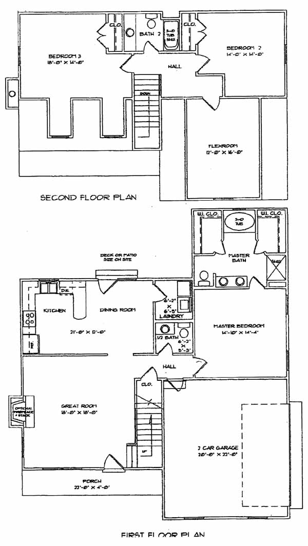
3 Bedroom, 2.5 Bath, 2 Car Garage
1977 - Square Feet
$187,429
Model Schrewsbury - Murfreesboro, Tennessee New Homes for Sale
3 Bedroom, 2.5 Bath, 2 Car Garage
1977 - Square Feet
$187,429
Area: Murfreesboro, Tennessee
Built in a beautiful planned community near major thoroughfares. This is a super house at a great price. All of the bedrooms are large. The master suite is on the main floor and has a huge master bath with a tub and separate shower. Flex or bonus room on the second floor. Great room with a ventless gas fireplace. Kitchen and dining room combination. Large laundry room.
Please complete the form below to get more information on Model Schrewsbury and other available new home listings from a local Murfreesboro, Tennessee Real Estate Agent
Contact a local Murfreesboro, TN Real Estate Agent
(Please enter all fields.)
Schrewsbury in Murfreesboro
Featured New Home
Featured Real Estate Agents
Chris Garrett SRS, SFR
Century 21 United Realty

Phone: (615) 475-7430
Murfreesboro, TN
[email protected]
Ann Hoke
Ann Hoke and Assoc. Keller Williams

Phone: (615) 397-4024
Murfreesboro, TN
Valerie Nicgorski
Parks

Phone: (615) 785-4572
Murfreesboro, TN
[email protected]
George Weeks
RE/MAX Elite

Phone: (615) 454-9277
Murfreesboro, TN
Courtney Yates
Keller Williams Realty

Phone: (855) 912-9058
Murfreesboro, TN
Featured Mortgage Brokers
- EVERETT FINANCIAL INC, ORANGE BEACH, AL
25910 CANAL RD STE N
ORANGE BEACH, AL 36561 - SUMMIT MORTGAGE INC, FORT WAYNE, IN
8614 SAINT JOE RD
FORT WAYNE, IN 46835 - CATALYST LENDING INC, GREENWOOD VILLAGE, CO
6530 S YOSEMITE ST STE 310
GREENWOOD VILLAGE, CO 80111 - AMERICAN BANK, ROCKVILLE, MD
9201 CORPORATE BLVD STE 130
ROCKVILLE, MD 20850 - CARLILE PROPERTIES, SACRAMENTO, CA
1009 22ND STREET, 3A
SACRAMENTO, CA 95816
