Model Bentley
Murfreesboro, Tennessee New Homes for Sale
Murfreesboro, Tennessee New Homes for Sale
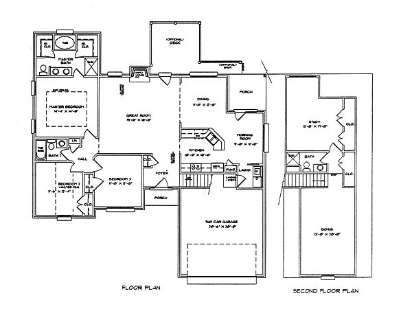
3 Bedroom, 3 Bath, 2 Car Garage
2289 - Square Feet
$223,729
Model Bentley - Murfreesboro, Tennessee New Homes for Sale
3 Bedroom, 3 Bath, 2 Car Garage
2289 - Square Feet
$223,729
Area: Murfreesboro, Tennessee
Beautiful planned community. Less than a mile to Interstate 24, three miles to major shopping center, pharmacy and strip mall in the area. Beautiful wooded lots. Some basement homes. Swimming pool and other amenities not open but in progress. Great floor plan. Three large bedrooms including a master suite all on the first floor. The master suite bath has garden tub, separate shower, double vanity and double walk-in closets. Kitchen opens to morning room. Great room with optional fireplace and formal dining. Upstairs has study or fourth bedroom with full bath and large bonus room.
Please complete the form below to get more information on Model Bentley and other available new home listings from a local Murfreesboro, Tennessee Real Estate Agent
Contact a local Murfreesboro, TN Real Estate Agent
(Please enter all fields.)
Bentley in Murfreesboro
Featured New Home
Featured Real Estate Agents
Ann Hoke
Ann Hoke and Assoc. Keller Williams

Phone: (615) 397-4024
Murfreesboro, TN
Chris Garrett SRS, SFR
Century 21 United Realty

Phone: (615) 475-7430
Murfreesboro, TN
[email protected]
George Weeks
RE/MAX Elite

Phone: (615) 454-9277
Murfreesboro, TN
Valerie Nicgorski
Parks

Phone: (615) 785-4572
Murfreesboro, TN
[email protected]
Courtney Yates
Keller Williams Realty

Phone: (855) 912-9058
Murfreesboro, TN
Featured Mortgage Brokers
- BANK OF NORTH CAROLINA, CHARLOTTE, NC
7422 CARMEL EXECUTIVE PARK DR
CHARLOTTE, NC 28226 - SYNOVUS MORTGAGE CORP, ROSWELL, GA
10446 ALPHARETTA ST
ROSWELL, GA 30075 - NEIGHBORS FINANCIAL CORP, SACRAMENTO, CA
2831 G ST STE 200
SACRAMENTO, CA 95816 - Consolidated Loan Company of Albany- Home Office, mortgage broker in Albany, GA
430 W Tift Ave
Albany, GA 31701 - MOVEMENT MORTGAGE LLC, CHARLOTTESVILLE, VA
2271 SEMINOLE LN
CHARLOTTESVILLE, VA 22901
