Model Custom D7
Charlotte, Tennessee New Homes for Sale
Charlotte, Tennessee New Homes for Sale
3 Bedroom, 2.5 Bath, 1 Car Garage
2056 - Square Feet
$164,780
Model Custom D7 - Charlotte, Tennessee New Homes for Sale
3 Bedroom, 2.5 Bath, 1 Car Garage
2056 - Square Feet
$164,780
Area: Charlotte, Tennessee
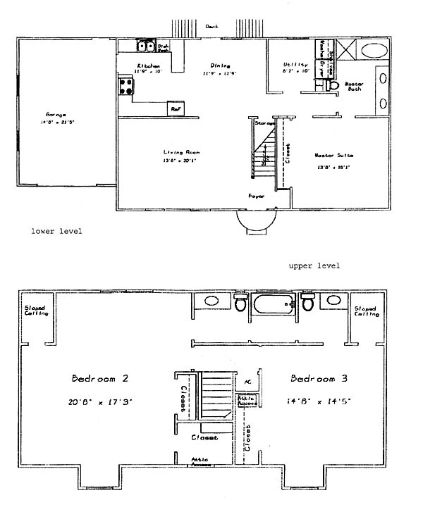
Beautiful wooded lots from half acres and up, located off of the highway for quick access to the interstate. Close to town, but you will feel like you're out in nature. Several floor plans or bring your own floor plans to have built on the lot of your choice (must meet some requirements). Beautiful Cape Cod home situated on almost an acre lot. This home features living room/kitchen/dining room combo with a utility room. Large master bedroom on the first floor with two extra large bedrooms on the second floor and bath plus added closet space. You'll appreciate the efficient use of space of this floor plan. Double entry for master bedroom from the hall. Sit back on your patio and enjoy your treed yard.
Please complete the form below to get more information on Model Custom D7 and other available new home listings from a local Charlotte, Tennessee Real Estate Agent
Contact a local Charlotte, TN Real Estate Agent
(Please enter all fields.)
Custom D7 in Charlotte
Featured New Home
Featured Real Estate Agents
Lea Ann England
ERA Real Estate Professionals

Phone: (615) 533-2117
Dickson, TN
Kristy Cartwright
Coldwell Banker Lakeside

Phone: (615) 838-6755
Hendersonville, TN
T. Edward (Eddie) Perry
Realty Executives Maynardville

Phone: (865) 414-9782
Maynardville, TN
[email protected]
Britney Vance
Crye-Leike

Phone: (615) 864-9481
dickson, TN
Don Martin
Reliant Realty ERA Powered

Phone: (615) 647-9096
Clarksville, TN
Featured Mortgage Brokers
- FIRST HOME MORTGAGE CORP, MILLERSVILLE, MD
8638 VETERANS HWY STE 300
MILLERSVILLE, MD 21108 - Priority Mortgage Corp., mortgage broker in Worthington, OH
150 E Wilson Bridge Rd Ste 350
Worthington, OH 43085 - PRIMARY RESIDENTIAL MORTGAGE INC, MIAMI, FL
7300 N KENDALL DR STE 340
MIAMI, FL 33156 - MOVEMENT MORTGAGE LLC, RICHMOND, VA
5014 MONUMENT AVE
RICHMOND, VA 23230 - Consolidated Loan Company of Albany- Home Office, mortgage broker in Albany, GA
430 W Tift Ave
Albany, GA 31701
