Model Plan 2179 C
Sumter, South Carolina New Homes for Sale
Sumter, South Carolina New Homes for Sale
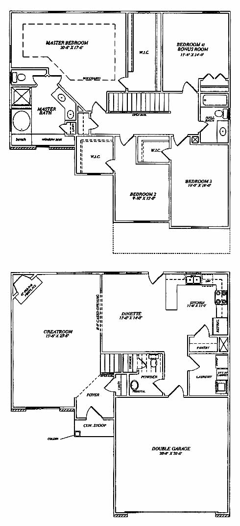
3 Bedroom, 2.5 Bath, 2 Car Garage
2215 Square Feet
$186,700
Model Plan 2179 C - Sumter, South Carolina New Homes for Sale
3 Bedroom, 2.5 Bath, 2 Car Garage
2215 Square Feet
$186,700
Area: Sumter, South Carolina
Beautiful community offering large wooded homesites with winding streets and sidewalks throughout. Destined to be a classic neighborhood, this community feels secluded in the country while being convenient to all that Lexington County offers.
Spacious great room at the foyer entrance includes a fireplace where you can entertain guests. The kitchen in the back includes a pantry and wrap-around counter that overlooks the dinette area. The second-floor master bedroom includes an oversized walk-in closet and luxurious master bath with double vanity, soaking tub, window seat and a separate shower. Two more bedrooms share a bath. The bonus room makes a nice fourth bedroom if needed.
Please complete the form below to get more information on Model Plan 2179 C and other available new home listings from a local Sumter, South Carolina Real Estate Agent
Contact a local Sumter, SC Real Estate Agent
(Please enter all fields.)
Plan 2179 C in Sumter
Featured New Home
Featured Real Estate Agents
Retta Sanders
Century 21 Hawkins and Kolb

Phone: (803) 350-9043
Sumter, SC
[email protected]
Charlie Fossett
ERA Wilder Realty

Phone: (803) 353-4640
Sumter, SC
[email protected]
Jan Epps
Russell and Jeffcoat Realtors, Inc.

Phone: (803) 968-9888
Sumter, SC
[email protected]
Vince Watkins
ERA Wilder Realty

Phone: (803) 618-4592
Sumter, SC
[email protected]
Millie Welch
Prudential - John M. Brabham

Phone: (803) 795-7542
Sumter, SC
Featured Mortgage Brokers
- UNION MORTGAGE GROUP, INC., GREENBELT, MD
7501 GREENWAY CENTER DR
GREENBELT, MD 20770 - BANK OF AMERICA NA CHARLOTTE, FOREST HILLS, NY
10510 QUEENS BLVD STE 2
FOREST HILLS, NY 11375 - BANK OF ENGLAND, OLD SAYBROOK, CT
44 POND RD
OLD SAYBROOK, CT 6475 - TOP FLITE FINANCIAL INC, WATERFORD, MI
5663 HIGHLAND RD
WATERFORD, MI 48327 - LEADER ONE FINANCIAL CORPORATION, OVERLAND PARK, KS
11020 KING ST STE 390
OVERLAND PARK, KS 66210
