Model Magnolia
Summerville, South Carolina New Homes for Sale
Summerville, South Carolina New Homes for Sale
3 Bedroom, 2 Bath, OPT Car Garage
1347 - Square Feet
$151,325
Model Magnolia - Summerville, South Carolina New Homes for Sale
3 Bedroom, 2 Bath, OPT Car Garage
1347 - Square Feet
$151,325
Area: Summerville, South Carolina
New construction condominium community overlooking in a beautiful lake setting right in the heart of Mt Pleasant. This distinctive luxury community features a putting green, community garden area, fitness center, business center, finely appointed clubhouse, swimming pool, and unmatched convenience to shopping, hospitals, great schools, and downtown Charleston. Close interstate access even makes the airport just a short drive away. Even an optional garage is available. All this is now available in a price range that makes the popular Mount Pleasant area now seem quite affordable.
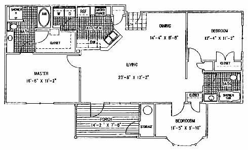
This three bedroom, two bath plan features a very expansive great room / dining room combination area. Through out you can enjoy deluxe carpeting, 9' ceilings, generous closets and storage, and state-of-the-art wiring for the internet, cable TV, and the phone. The well thought out kitchen is fully equipped with deluxe appliances and white designer cabinets and is conveniently open to the dining area. The master suite, separated from the other two bedrooms for privacy, has a large vanity with a cultured marble counter top, an impressive walk in closet, and a very luxurious garden tub. The two other bedrooms are spacious. The front bedroom even has a bay window as nice added touch. To enjoy this beautiful lake setting, the Magnolia also sports a nice sized porch area with a convenient outside storage room attached.
Please complete the form below to get more information on Model Magnolia and other available new home listings from a local Summerville, South Carolina Real Estate Agent
Contact a local Summerville, SC Real Estate Agent
(Please enter all fields.)
Magnolia in Summerville
Featured New Home
Featured Real Estate Agents
Kimberly Layman-Greco
Carolina One

Phone: (843) 810-8711
Summerville, SC
ChuckTownHomes
ChuckTown Homes

Phone: (843) 203-9414
Charleston, SC
debra walters
carolina one

Phone: (843) 729-3031
Summerville, SC
Loren Bethea
Carolina One Real Estate

Phone: (843) 696-1156
Summerville, SC
[email protected]
Caleb Pearson
Featured Mortgage Brokers
- INDEPENDENT BANK, MT PLEASANT, MI
319 E BROADWAY ST
MT PLEASANT, MI 48858 - BANK OF AMERICA NA CHARLOTTE, FOREST HILLS, NY
10510 QUEENS BLVD STE 2
FOREST HILLS, NY 11375 - FIRST HERITAGE FINANCIAL, LLC, TREVOSE, PA
2655 NESHAMINY INTERPLEX DR
TREVOSE, PA 19053 - ACADEMY MORTGAGE CORPORATION, CINCINNATI, OH
11590 CENTURY BLVD STE 112
CINCINNATI, OH 45246 - TOP FLITE FINANCIAL INC, FORT LAUDERDALE, FL
33 NE 2ND ST STE 100
FORT LAUDERDALE, FL 33301

