Model Harrison I
Summerville, South Carolina New Homes for Sale
Summerville, South Carolina New Homes for Sale
3 Bedroom, 2.5 Bath, 2 Car Garage
2096 - Square Feet
$157,900
Model Harrison I - Summerville, South Carolina New Homes for Sale
3 Bedroom, 2.5 Bath, 2 Car Garage
2096 - Square Feet
$157,900
Area: Summerville, South Carolina
This community of single-family homes is a nice area for raising a family with everyday conveniences of shopping, schools, churches and restaurants closeby.
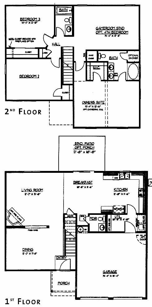
This home includes a large formal dining room to one side of the entry. At the back is the living room with optional fireplace where you can relax comfortably on the weekend. The breakfast room with patio access leads to the kitchen where you can prepare meals easily with all the counterspace. The second floor has three bedrooms, including the owner's sute with walk-in closet and private bath. The gameroom area makes a nice fourth bedroom if needed.
Please complete the form below to get more information on Model Harrison I and other available new home listings from a local Summerville, South Carolina Real Estate Agent
Contact a local Summerville, SC Real Estate Agent
(Please enter all fields.)
Harrison I in Summerville
Featured New Home
Featured Real Estate Agents
Loren Bethea
Carolina One Real Estate

Phone: (843) 696-1156
Summerville, SC
[email protected]
Caleb Pearson
RE/MAX Alliance

Phone: (843) 800-2770
29464, SC
Kimberly Layman-Greco
Carolina One

Phone: (843) 810-8711
Summerville, SC
Taylor Charpia Real Estate
RE/MAX PRO REALTY

Phone: (843) 367-7709
Charleston, SC
Kim Boerman
The Boerman Real Estate Group

Phone: (843) 474-2910
Charleston, SC
[email protected]
Featured Mortgage Brokers
- CrossCountry Mortgage, Inc., mortgage broker in Elgin, IL
374 N Mclean Blvd
Elgin, IL 60123 - M/I Financial, LLC, mortgage broker in Columbus, OH
3 Easton Oval Ste 340
Columbus, OH 43219 - ENVOY MORTGAGE LTD, COLORADO SPRINGS, CO
6760 CORPORATE DR STE 130
COLORADO SPRINGS, CO 80919 - PRIMELENDING A PLAINSCAPITAL COMPANY, INDIANAPOLIS, IN
50 E 91ST ST STE 300
INDIANAPOLIS, IN 46240 - TALMER BANK & TRUST, TROY, MI
2301 W BIG BEAVER RD STE 525
TROY, MI 48084
