Model Plan 1607 A
Orangeburg, South Carolina New Homes for Sale
Orangeburg, South Carolina New Homes for Sale
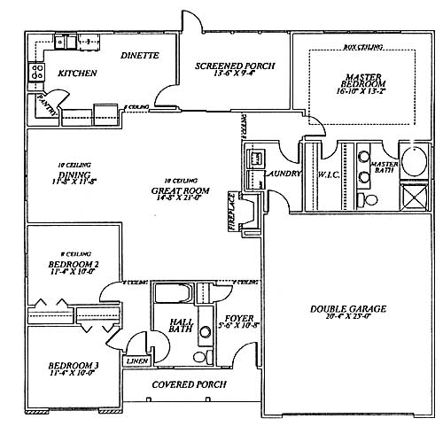
3 Bedroom, 2 Bath, 2 Car Garage
1607 - Square Feet
$137,390
Model Plan 1607 A - Orangeburg, South Carolina New Homes for Sale
3 Bedroom, 2 Bath, 2 Car Garage
1607 - Square Feet
$137,390
Area: Orangeburg, South Carolina
This home is very cozy with large rooms, a split floor plan with the master bedroom on one side and a screened porch. This ranch style home is perfect for entertaining friends and family. The master bedroom is spacious and has a walk-in closet. The master bath has a separate garden tub and shower.
Please complete the form below to get more information on Model Plan 1607 A and other available new home listings from a local Orangeburg, South Carolina Real Estate Agent
Contact a local Orangeburg, SC Real Estate Agent
(Please enter all fields.)
Plan 1607 A in Orangeburg
Featured New Home
Featured Real Estate Agents
Tina Goddard
Century 21 The Moore Group

Phone: (803) 535-6248
Orangeburg, SC
John Kneece
Orangeburg Homes dot Com

Phone: (803) 378-5208
Orangeburg, SC
[email protected]
Karen Choe
CENTURY 21 The Moore Group

Phone: (803) 351-2081
,
Lauren Dawkins
CENTURY 21 THE MOORE GROUP

Phone: (803) 290-3600
ORANGEBURG, SC
Featured Mortgage Brokers
- TOP FLITE FINANCIAL INC, WATERFORD, MI
5663 HIGHLAND RD
WATERFORD, MI 48327 - GENERATION MORTGAGE COMPANY, HILO, HI
1257 KILAUEA AVE STE 30
HILO, HI 96720 - SUMMIT MORTGAGE INC, FORT WAYNE, IN
8614 SAINT JOE RD
FORT WAYNE, IN 46835 - M/I Financial, LLC, mortgage broker in Columbus, OH
3 Easton Oval Ste 340
Columbus, OH 43219 - PRIMELENDING A PLAINSCAPITAL COMPANY, INDIANAPOLIS, IN
50 E 91ST ST STE 300
INDIANAPOLIS, IN 46240
