Model Plan 1751 B
Orangeburg, South Carolina New Homes for Sale
Orangeburg, South Carolina New Homes for Sale
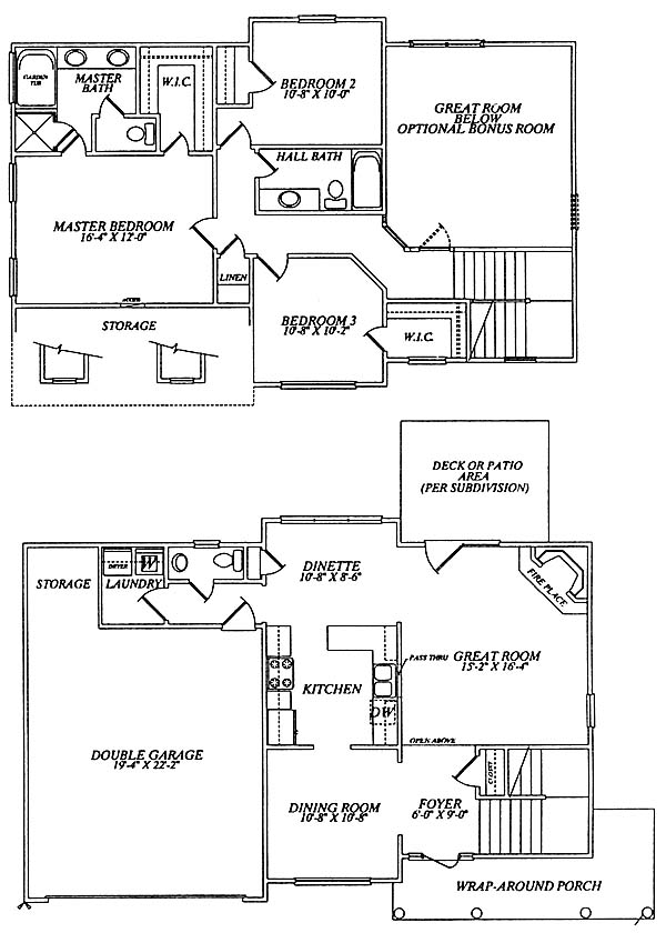
3 Bedroom, 2.5 Bath, 2 Car Garage
1751 - Square Feet
$147,015
Model Plan 1751 B - Orangeburg, South Carolina New Homes for Sale
3 Bedroom, 2.5 Bath, 2 Car Garage
1751 - Square Feet
$147,015
Area: Orangeburg, South Carolina
This wonderful home has a fireplace in the two-story great room. Upstairs the master bedroom has a separate shower, garden tub and a walk-in closet. There is plenty of storage in this home.
Please complete the form below to get more information on Model Plan 1751 B and other available new home listings from a local Orangeburg, South Carolina Real Estate Agent
Contact a local Orangeburg, SC Real Estate Agent
(Please enter all fields.)
Plan 1751 B in Orangeburg
Featured New Home
Featured Real Estate Agents
Karen Choe
CENTURY 21 The Moore Group

Phone: (803) 351-2081
,
Lauren Dawkins
CENTURY 21 THE MOORE GROUP

Phone: (803) 290-3600
ORANGEBURG, SC
John Kneece
Orangeburg Homes dot Com

Phone: (803) 378-5208
Orangeburg, SC
[email protected]
Tina Goddard
Century 21 The Moore Group

Phone: (803) 535-6248
Orangeburg, SC
Featured Mortgage Brokers
- MANN MORTGAGE LLC, LEWISTON, ID
247 THAIN RD STE 104
LEWISTON, ID 83501 - AMERIPRO FUNDING INC, SAN ANTONIO, TX
401 E SONTERRA BLVD STE 375
SAN ANTONIO, TX 78258 - OPEN MORTGAGE LLC, CORONA, CA
1840 ROCKCREST DR
CORONA, CA 92880 - FIRST PRIORITY FINANCIAL INC, BENICIA, CA
1350 HAYES ST STE C14
BENICIA, CA 94510 - PINNACLE CAPITAL MORTGAGE CORPORATION, BELLEVUE, WA
2800 NORTHUP WAY STE 220
BELLEVUE, WA 98004
