Model Tuscany
Horry County, South Carolina New Homes for Sale
Horry County, South Carolina New Homes for Sale
2 Bedroom, 2 Bath, Car Garage
1937 - Square Feet
$256,900
Model Tuscany - Horry County, South Carolina New Homes for Sale
2 Bedroom, 2 Bath, Car Garage
1937 - Square Feet
$256,900
Area: Horry County, South Carolina
This gated community features the best in luxury living and includes several clubhouses set among four signature golf courses. Picturesque views can be found at every turn with nature preserves, lakes and lush wooded areas throughout. Smiling faces and lasting friendships await you in this beautiful neighborhood.
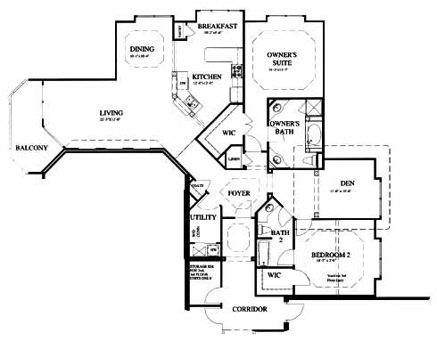
This villa has a den to one side of the foyer that makes a nice home office. An owner's suite toward the back includes a walk-in closet and private bath with his and her sinks, a tub and separate shower. A second bedroom has private access to a bath and includes a walk-in closet. The kitchen has ample counterspace, a pantry and overlooks the breakfast area. The dining room is also closeby. The large living room has plenty of space to entertain guests and also has access to a balcony.
Please complete the form below to get more information on Model Tuscany and other available new home listings from a local Horry County, South Carolina Real Estate Agent
Contact a local Horry County, SC Real Estate Agent
(Please enter all fields.)
Tuscany in Horry County
Featured New Home
Featured Real Estate Agents
Jamie D Anna
Palmetto Coastal Homes

Phone: (843) 631-2199
Myrtle Beach, SC
[email protected]
Jerry Pinkas
Jerry Pinkas Real Estate Experts

Phone: (843) 800-2667
Myrtle Beach, SC
[email protected]
Radha Herring
Watermark Real Estate Group

Phone: (843) 474-0194
Murrells Inlet, SC
[email protected]
Bradley Bennett
Oceanfront Guru Real Estate Sales and

Phone: (843) 602-4532
Myrtle Beach, SC
[email protected]
T.J. O Brien
Berkshire Hathaway Myrtle Beach Real Estate

Phone: (843) 222-2591
Myrtle Beach, SC
Featured Mortgage Brokers
- Priority Mortgage Corp., mortgage broker in Worthington, OH
150 E Wilson Bridge Rd Ste 350
Worthington, OH 43085 - INLANTA MORTGAGE, INC., OAK BROOK, IL
2803 BUTTERFIELD RD STE 130
OAK BROOK, IL 60523 - EMBRACE HOME LOANS INC, MIDDLETOWN, RI
25 ENTERPRISE CTR
MIDDLETOWN, RI 2842 - REVERSE MORTGAGE SOLUTIONS INC, NEWBURGH, NY
700 CORPORATE BLVD
NEWBURGH, NY 12550 - RESIDENTIAL HOME FUNDING CORPORATION, BLUE BELL, PA
1787 SENTRY PKWY W BLDG 18-130
BLUE BELL, PA 19422
