Model Sumter
Greenville County, South Carolina New Homes for Sale
Greenville County, South Carolina New Homes for Sale
3 Bedroom, 2.5 Bath, 2 Car Garage
2268 - Square Feet
$177,850
Model Sumter - Greenville County, South Carolina New Homes for Sale
3 Bedroom, 2.5 Bath, 2 Car Garage
2268 - Square Feet
$177,850
Area: Greenville County, South Carolina
This community is located convenient to restaurants, shopping, medical facilities, highways and schools. Rolling hills, a pond and cul-de-sac streets add to an already picturesque private setting. Amenities include a pool and cabana. Smiling faces and beautiful homes await you in this great neighborhood.
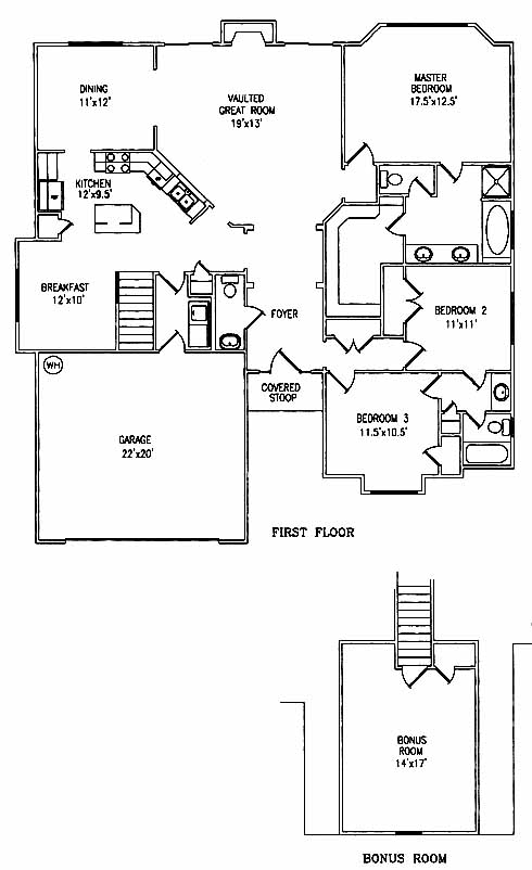
This home offers a beautiful master suite that includes a bay window, walk-in closet and master bath with double vanity, tub and separate shower. Two more bedrooms at the front share a Jack-n-Jill bath. The vaulted great room with fireplace is a nice spot to relax on the weekend. The kitchen has a pantry and island workspace for preparing food. The breakfast room and formal dining room on either side of the kitchen are nice options when serving meals. The second-floor bonus room is a nice spot to use as a game room or fitness area.
Please complete the form below to get more information on Model Sumter and other available new home listings from a local Greenville County, South Carolina Real Estate Agent
Contact a local Greenville County, SC Real Estate Agent
(Please enter all fields.)
Sumter in Greenville County
Featured New Home
Featured Real Estate Agents
Bruce Bachtel
Keller Williams Central

Phone: (864) 642-1537
Greenville, SC
[email protected]
MacDonald Home Team
Berkshire Hathaway Home Services

Phone: (864) 642-1619
Greenville, SC
Joan Herlong
AugustaRoad.com Realty LLC

Phone: (864) 602-2358
Greenville, SC
Valerie Miller
The Marchant Company

Phone: (864) 508-7652
Greenville, SC
Chet and Beth Smith
Chet and Beth Smith Group

Phone: (864) 501-0002
Greenville, SC
Featured Mortgage Brokers
- PRIMELENDING A PLAINSCAPITAL COMPANY, NORTH SYRACUSE, NY
6702 BUCKLEY RD STE 140
NORTH SYRACUSE, NY 13212 - ADVISORS MORTGAGE GROUP LLC, TURNERSVILLE, NJ
4991 BLACK HORSE PIKE
TURNERSVILLE, NJ 8012 - MOVEMENT MORTGAGE LLC, COLUMBIA, SC
1129 SPARKLEBERRY LANE EXT
COLUMBIA, SC 29223 - LIBERTY HOME EQUITY SOLUTIONS INC, STAMFORD, CT
263 TRESSER BLVD FL 9
STAMFORD, CT 6901 - HOMESTAR FINANCIAL CORPORATION, WINDER, GA
133 W ATHENS ST STE I
WINDER, GA 30680
