Model Palmetto
Charleston Metro, South Carolina New Homes for Sale
Charleston Metro, South Carolina New Homes for Sale
4 Bedroom, 2.5 Bath, 2 Car Garage
2376 - Square Feet
$209,990
Model Palmetto - Charleston Metro, South Carolina New Homes for Sale
4 Bedroom, 2.5 Bath, 2 Car Garage
2376 - Square Feet
$209,990
Area: Charleston Metro, South Carolina
This community offers beautiful homesites set along sidewalk-lined streets. An ideal location for raising a family being only minutes from area malls, restaurants, churches and schools. Both you and the kids will make lasting friendships in this neighborhood of smiling faces that includes a community swimming pool.
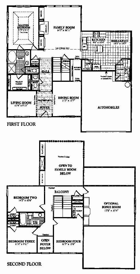
This beautiful two-story home has living and dining rooms on either side of the two-story foyer. The family room includes a fireplace and plant shelves that add a decorative touch to the room. The large kitchen includes an island workspace, walk-in pantry and opens into the breakfast area. The first-floor master suite includes an oversized walk-in closet and private bath with double vanity. The second floor has three more bedrooms, a bath and an optional bonus room.
Please complete the form below to get more information on Model Palmetto and other available new home listings from a local Charleston Metro, South Carolina Real Estate Agent
Contact a local Charleston Metro, SC Real Estate Agent
(Please enter all fields.)
Palmetto in Charleston Metro
Featured New Home
Featured Real Estate Agents
Chris Facello Group
CAROLINA ONE REAL ESTATE

Phone: (843) 375-6010
Charleston, SC
Brian Beatty
Keller Williams Realty

Phone: (843) 380-4871
Mount Pleasant, SC
[email protected]
Mikki Ramey
Healthy Realty

Phone: (843) 407-3541
Daniel Island, SC
[email protected]
Brian F Walsh
Carolina One Real Estate

Phone: (843) 754-2089
Charleston, SC
[email protected]
Marshall Walker
The Marshall Walker Real Estate Group

Phone: (843) 206-0132
Charleston, SC
[email protected]
Featured Mortgage Brokers
- PROSPECT MORTGAGE LLC, NORTH CHESTERFIELD, VA
7401 BEAUFONT SPRINGS DR STE 2
NORTH CHESTERFIELD, VA 23225 - VENTA FINANCIAL GROUP INC, LAS VEGAS, NV
1300 S JONES BLVD STE 150
LAS VEGAS, NV 89146 - PINNACLE CAPITAL MORTGAGE CORPORATION, PUYALLUP, WA
311 RIVER RD STE 202
PUYALLUP, WA 98371 - ENVOY MORTGAGE LTD, COLORADO SPRINGS, CO
6760 CORPORATE DR STE 130
COLORADO SPRINGS, CO 80919 - PRYSMA LENDING GROUP LLC, DANBURY, CT
10 PRECISION RD STE 2B
DANBURY, CT 6810
