Model 1852 A
Charleston Metro, South Carolina New Homes for Sale
Charleston Metro, South Carolina New Homes for Sale
3 Bedroom, 2.5 Bath, 2 Car Garage
1852 - Square Feet
$189,100
Model 1852 A - Charleston Metro, South Carolina New Homes for Sale
3 Bedroom, 2.5 Bath, 2 Car Garage
1852 - Square Feet
$189,100
Area: Charleston Metro, South Carolina
This traditional-style community brilliantly mixes housing styles among sidewalk and tree-lined streets. Features and amenities include common areas, walking trails, playground, tennis court and pool. Close to area shopping and restaurants.
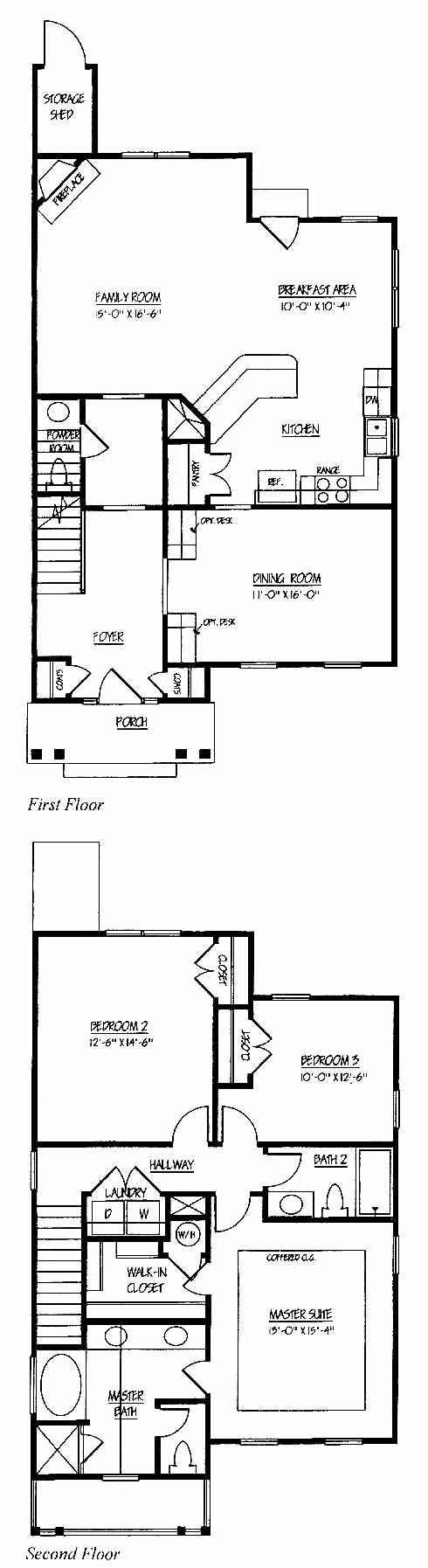
This two-story home has a large formal dining room to one side of the foyer entrance. The kitchen with pantry and ample counterspace overlooks the breakfast room. Entertain guests comfortably in the family room with fireplace. The second-floor master bedroom includes a walk-in closet and master bath with double vanity, tub and separate shower. Two bedrooms in the back share a bath.
Please complete the form below to get more information on Model 1852 A and other available new home listings from a local Charleston Metro, South Carolina Real Estate Agent
Contact a local Charleston Metro, SC Real Estate Agent
(Please enter all fields.)
1852 A in Charleston Metro
Featured New Home
Featured Real Estate Agents
Dave Friedman
Dave Friedman Real Estate

Phone: (843) 800-2596
Mount Pleasant, SC
[email protected]
The Cassina Group
The Cassina Group, LLC

Phone: (843) 970-1294
Mount Pleasant, SC
[email protected]
Jeff Cook
Jeff Cook Real Estate

Phone: (843) 593-9483
Summerville, SC
Mikki Ramey
Healthy Realty

Phone: (843) 407-3541
Daniel Island, SC
[email protected]
Marshall Walker
The Marshall Walker Real Estate Group

Phone: (843) 206-0132
Charleston, SC
[email protected]
Featured Mortgage Brokers
- HIGH TECH LENDING INC, CITRUS HEIGHTS, CA
7777 GREENBACK LN STE 210
CITRUS HEIGHTS, CA 95610 - MOVEMENT MORTGAGE LLC, GASTONIA, NC
1000 S NEW HOPE RD
GASTONIA, NC 28054 - EMBRACE HOME LOANS INC, MIDDLETOWN, RI
25 ENTERPRISE CTR
MIDDLETOWN, RI 2842 - TOP FLITE FINANCIAL INC, FORT LAUDERDALE, FL
33 NE 2ND ST STE 100
FORT LAUDERDALE, FL 33301 - MANN MORTGAGE LLC, LEWISTON, ID
247 THAIN RD STE 104
LEWISTON, ID 83501
