Model Chesterfield
Anderson, South Carolina New Homes for Sale
Anderson, South Carolina New Homes for Sale
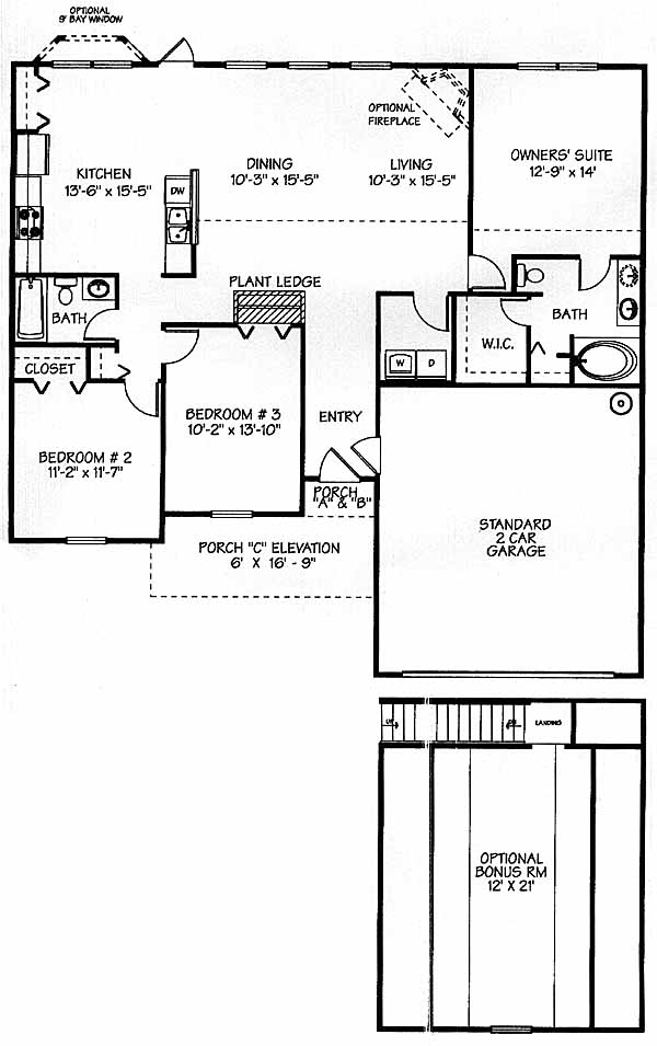
3 Bedroom, 2 Bath, 2 Car Garage
1444 - Square Feet
$114,900
Model Chesterfield - Anderson, South Carolina New Homes for Sale
3 Bedroom, 2 Bath, 2 Car Garage
1444 - Square Feet
$114,900
Area: Anderson, South Carolina
This ranch style home is a split floorplan that offers vaulted ceilings in the family room. A large bay window is optional in the kitchen and a bonus room is optional over the garage. Located near shopping. Convenient to major highways. Community pool, tennis courts and a playground.
Please complete the form below to get more information on Model Chesterfield and other available new home listings from a local Anderson, South Carolina Real Estate Agent
Contact a local Anderson, SC Real Estate Agent
(Please enter all fields.)
Chesterfield in Anderson
Featured New Home
Featured Real Estate Agents
Beverly Harper
Keller Williams Western Upstate

Phone: (864) 958-1600
Anderson, SC
[email protected]
Elizabeth Gray-Carr
Realty Partners

Phone: (864) 219-5785
Anderson, SC
[email protected]
Deana Kilcommons
Coldwell Banker

Phone: (864) 641-6999
Anderson, SC
Rhonda Vitale
Keller Williams Realty

Phone: (864) 501-5271
Anderson, SC
Lauren Gillespie
Featured Mortgage Brokers
- ENVOY MORTGAGE LTD, COLORADO SPRINGS, CO
6760 CORPORATE DR STE 130
COLORADO SPRINGS, CO 80919 - BANK OF ENGLAND, OLD SAYBROOK, CT
44 POND RD
OLD SAYBROOK, CT 6475 - GUARANTEED RATE INC, PARSIPPANY, NJ
322 ROUTE 46 STE 170
PARSIPPANY, NJ 7054 - BANK OF NORTH CAROLINA, CHARLOTTE, NC
7422 CARMEL EXECUTIVE PARK DR
CHARLOTTE, NC 28226 - CSTONE MORTGAGE INC, SAN DIEGO, CA
4545 MURPHY CANYON RD STE 213
SAN DIEGO, CA 92123

