Model Federal
Paoli, Pennsylvania New Homes for Sale
Paoli, Pennsylvania New Homes for Sale
4 Bedroom, 4 Bath, 3 Car Garage
3669 Square Feet
$586,900
Model Federal - Paoli, Pennsylvania New Homes for Sale
4 Bedroom, 4 Bath, 3 Car Garage
3669 Square Feet
$586,900
Area: Paoli, Pennsylvania
This is a neighborhood of luxurious carriage and estate homes located in one of the areas most beautiful natural settings. The community offers an intimate environment with serene open space, tranquil creeks and a private walking trail. This picturesque landscape in the heart of the Brandywine Valley will be a welcome retreat for the families who make this their new home.
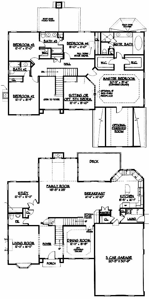
The foyer flanked by the lovely living and dining room takes you past the study and into the family room. From here you can access the kitchen with island and breakfast area. Upstairs you have the 2nd bedroom with bath, 3rd and 4th bedrooms with Jack and Jill bath and the stunning master bedroom with sitting room and master bath with his and her walk-in closets.
Please complete the form below to get more information on Model Federal and other available new home listings from a local Paoli, Pennsylvania Real Estate Agent
Contact a local Paoli, PA Real Estate Agent
(Please enter all fields.)
Federal in Paoli
Featured New Home
Featured Real Estate Agents
Tony Dahm
Berkshire Hathaway - Fox and Roach Realtors

Phone: (484) 678-2784
West Chester, PA
[email protected]
Nick and Trudy Vandekar
Long and Foster Real Estate Inc

Phone: (610) 850-9098
Devon, PA
[email protected]
Matthew Dunbar
Mary Enck Realty, Inc.

Phone: (570) 778-9467
,
Betty Angelucci
BHHS Fox and Roach Devon

Phone: (855) 910-9961
Devon, PA
[email protected]
Lisa Read
Pagoda Realty and Property Mgmt

Phone: (717) 739-5966
West Lawn, PA
Featured Mortgage Brokers
- PRIMARY RESIDENTIAL MORTGAGE INC, BALTIMORE, MD
1816 ALICEANNA ST # B
BALTIMORE, MD 21231 - GATEWAY FUNDING DIVERSIFIED MTG SRVS LP, CARMEL, IN
600 E CARMEL DR STE 169
CARMEL, IN 46032 - PRIMELENDING A PLAINSCAPITAL COMPANY, NORTH SYRACUSE, NY
6702 BUCKLEY RD STE 140
NORTH SYRACUSE, NY 13212 - AMERIPRO FUNDING INC, SAN ANTONIO, TX
401 E SONTERRA BLVD STE 375
SAN ANTONIO, TX 78258 - AMERICAN MIDWEST MTG CORP, CLEVELAND, OH
6363 YORK RD STE 300
CLEVELAND, OH 44130
