Model Abbey Rose II
Paoli, Pennsylvania New Homes for Sale
Paoli, Pennsylvania New Homes for Sale
4 Bedroom, 2.5 Bath, 2 Car Garage
2722 Square Feet
$309,450
Model Abbey Rose II - Paoli, Pennsylvania New Homes for Sale
4 Bedroom, 2.5 Bath, 2 Car Garage
2722 Square Feet
$309,450
Area: Paoli, Pennsylvania
Spend your leisure time hiking, jogging or biking on trails designed for the fitness enthusiast at Hibernia and Marsh Creek Parks. Or enjoy a quiet family picnic and do some fishing at nearby Kerr Park. Is golf your passion? Relax and enjoy the close proximity of many fine courses. Shopping at the newly expanded Exton Mall, the dynamic King of Prussia Mall as well as the Lancaster and Reading manufacturers' outlets keep even the best shoppers busy. Medical facilities are close by at The Brandywine Hospital and the Chester County Hospital.
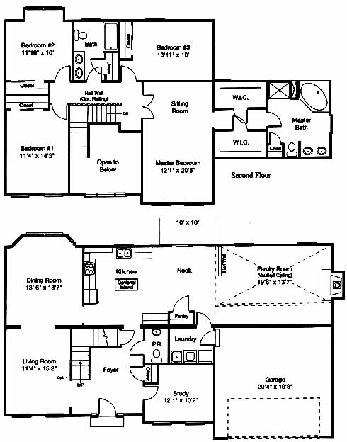
The foyer flanked by the living room and study takes you into the kitchen with nook and pantry. From here you can access the dining room and family room with fireplace. Upstairs you'll find 3 spacious bedrooms, hall bath and the master bedroom and bath with his and her walk-in closets.
Please complete the form below to get more information on Model Abbey Rose II and other available new home listings from a local Paoli, Pennsylvania Real Estate Agent
Contact a local Paoli, PA Real Estate Agent
(Please enter all fields.)
Abbey Rose II in Paoli
Featured New Home
Featured Real Estate Agents
Nick and Trudy Vandekar
Long and Foster Real Estate Inc

Phone: (610) 850-9098
Devon, PA
[email protected]
Mike McDaid
Re/Max Action Associates

Phone: (610) 283-2184
Exton, PA
[email protected]
Linda Burgwin
Long And Foster/ Devon

Phone: (484) 716-0163
Devon, PA
[email protected]
Talone and Company
Keller Williams Realty Devon/Wayne

Phone: (610) 405-0000
Devon, PA
Lisa Read
Pagoda Realty and Property Mgmt

Phone: (717) 739-5966
West Lawn, PA
Featured Mortgage Brokers
- Priority Mortgage Corp., mortgage broker in Worthington, OH
150 E Wilson Bridge Rd Ste 350
Worthington, OH 43085 - PRIMARY RESIDENTIAL MORTGAGE INC, MANCHESTER, CT
63 E CENTER ST FL 3
MANCHESTER, CT 6040 - TALMER BANK & TRUST, TROY, MI
2301 W BIG BEAVER RD STE 525
TROY, MI 48084 - MOVEMENT MORTGAGE LLC, FREDERICKSBURG, VA
4920 SOUTHPOINT DR
FREDERICKSBURG, VA 22407 - CASTLE & COOKE MORTGAGE LLC, GREENWOOD VILLAGE, CO
7400 E ORCHARD RD # 2900N
GREENWOOD VILLAGE, CO 80111
