Model Davenport
Paoli, Pennsylvania New Homes for Sale
Paoli, Pennsylvania New Homes for Sale
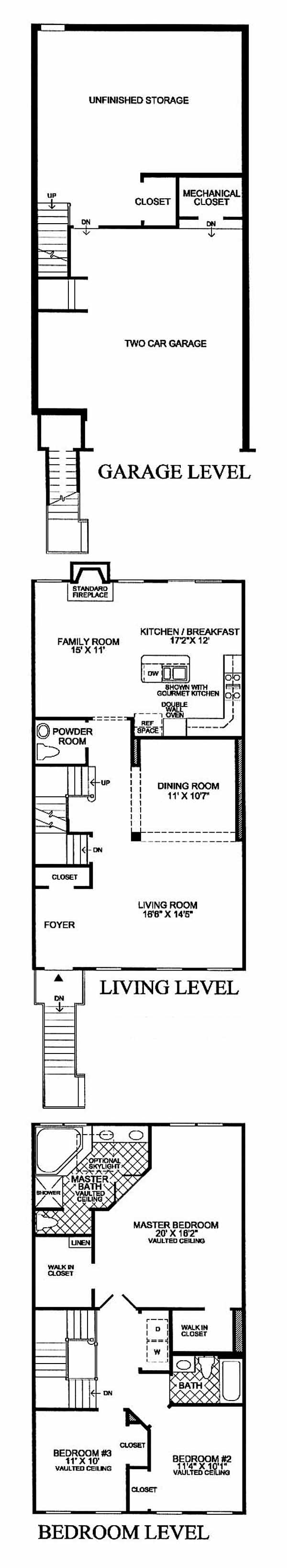
3 Bedroom, 2.5 Bath, 2 Car Garage
1940 - Square Feet
$319,900
Model Davenport - Paoli, Pennsylvania New Homes for Sale
3 Bedroom, 2.5 Bath, 2 Car Garage
1940 - Square Feet
$319,900
Area: Paoli, Pennsylvania
This two-car garage floor plan features an elegant foyer which opens to a spacious living room. Adjacent to the living room is the formal dining room. A well appointed kitchen with island counter top opens to the breakfast area. The master bedroom suite includes two large walk-in closets and master bath with soaking tub and dual vanities.
Please complete the form below to get more information on Model Davenport and other available new home listings from a local Paoli, Pennsylvania Real Estate Agent
Contact a local Paoli, PA Real Estate Agent
(Please enter all fields.)
Davenport in Paoli
Featured New Home
Featured Real Estate Agents
Betty Angelucci
BHHS Fox and Roach Devon

Phone: (855) 910-9961
Devon, PA
[email protected]
Tony Dahm
Berkshire Hathaway - Fox and Roach Realtors

Phone: (484) 678-2784
West Chester, PA
[email protected]
Linda Burgwin
Long And Foster/ Devon

Phone: (484) 716-0163
Devon, PA
[email protected]
Lisa Read
Pagoda Realty and Property Mgmt

Phone: (717) 739-5966
West Lawn, PA
Nick and Trudy Vandekar
Long and Foster Real Estate Inc

Phone: (610) 850-9098
Devon, PA
[email protected]
Featured Mortgage Brokers
- EMBRACE HOME LOANS INC, MIDDLETOWN, RI
25 ENTERPRISE CTR
MIDDLETOWN, RI 2842 - CARLILE PROPERTIES, SACRAMENTO, CA
1009 22ND STREET, 3A
SACRAMENTO, CA 95816 - RESIDENTIAL HOME FUNDING CORPORATION, BLUE BELL, PA
1787 SENTRY PKWY W BLDG 18-130
BLUE BELL, PA 19422 - PROSPECT MORTGAGE LLC, NORTH CHESTERFIELD, VA
7401 BEAUFONT SPRINGS DR STE 2
NORTH CHESTERFIELD, VA 23225 - INLANTA MORTGAGE, INC., OAK BROOK, IL
2803 BUTTERFIELD RD STE 130
OAK BROOK, IL 60523
