Model Worthington Traditional
Montgomery County, Pennsylvania New Homes for Sale
Montgomery County, Pennsylvania New Homes for Sale
4 Bedroom, 2.5 Bath, 2 Car Garage
2725+ - Square Feet
$400,000
Model Worthington Traditional - Montgomery County, Pennsylvania New Homes for Sale
4 Bedroom, 2.5 Bath, 2 Car Garage
2725+ - Square Feet
$400,000
Area: Montgomery County, Pennsylvania
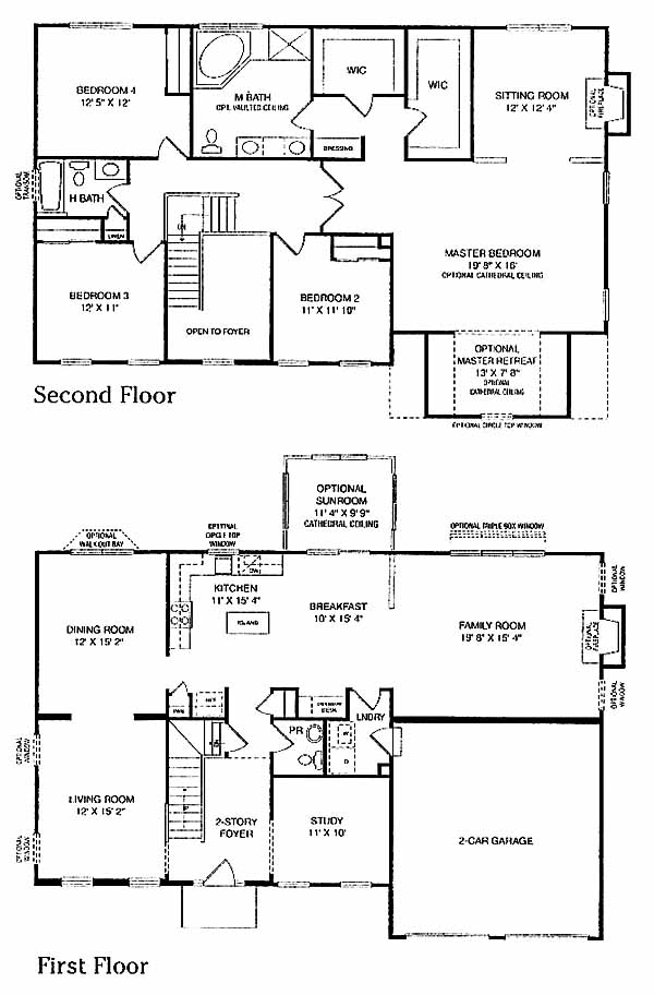
This popular home features an additional 220 sq. ft. on the Wellington model to yield approximately 2,945 sq. ft. total. The additional space is where you want it most - in the family room, kitchen/breakfast and dining rooms. Downstairs, you will enjoy a two-story foyer with turned staircase, spacious family room, study, formal living and dining room. Upstairs, you will find 4 bedrooms and 2 full baths, including the sumptuous master suite complete with sitting room, walk-in closets and dressing area. An optional 5th bedroom and/or master retreat is also available.
Please complete the form below to get more information on Model Worthington Traditional and other available new home listings from a local Montgomery County, Pennsylvania Real Estate Agent
Contact a local Montgomery County, PA Real Estate Agent
(Please enter all fields.)
Worthington Traditional in Montgomery County
Featured New Home
Featured Mortgage Brokers
- AMERICAN NATIONWIDE MORTGAGE COMPANY INC, LITTLE RIVER, SC
2220 HIGHWAY 17
LITTLE RIVER, SC 29566 - PRIMELENDING A PLAINSCAPITAL COMPANY, INDIANAPOLIS, IN
50 E 91ST ST STE 300
INDIANAPOLIS, IN 46240 - Blue Square Mortgage LLC, mortgage broker in Seattle, WA
4212 33rd Ave W
Seattle, WA 98199 - Priority Mortgage Corp., mortgage broker in Worthington, OH
150 E Wilson Bridge Rd Ste 350
Worthington, OH 43085 - M AND T BANK, CHEEKTOWAGA, NY
80 HOLTZ DR STE 2
CHEEKTOWAGA, NY 14225
