Model Pullman
Union County, North Carolina New Homes for Sale
Union County, North Carolina New Homes for Sale
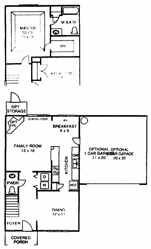
3 Bedroom, 2.5 Bath, 2 Car Garage
1675 Square Feet
$159,650
Model Pullman - Union County, North Carolina New Homes for Sale
3 Bedroom, 2.5 Bath, 2 Car Garage
1675 Square Feet
$159,650
Area: Union County, North Carolina
Offers everything a family could dream of: BIG 1/3 acre lot, low taxes, great schools. A sought after Union county location that is convenient to I-485, Charlotte, NC and Monroe, NC and much more.
This two-story floor plan home has three bedroom, 2 1/2 baths and a 1 or 2 car garage option. Home also features a large family room and dining room. Dining area adjoins gourmet kitchen. Master suite has a large walk-in closet.
Please complete the form below to get more information on Model Pullman and other available new home listings from a local Union County, North Carolina Real Estate Agent
Contact a local Union County, NC Real Estate Agent
(Please enter all fields.)
Pullman in Union County
Featured New Home
Featured Mortgage Brokers
- TOP FLITE FINANCIAL INC, FORT LAUDERDALE, FL
33 NE 2ND ST STE 100
FORT LAUDERDALE, FL 33301 - AMERICAN NATIONWIDE MORTGAGE COMPANY INC, LITTLE RIVER, SC
2220 HIGHWAY 17
LITTLE RIVER, SC 29566 - WESTSTAR MORTGAGE CORP, TUMWATER, WA
2620 R W JOHNSON RD SW # 104
TUMWATER, WA 98512 - M/I Financial, LLC, mortgage broker in Columbus, OH
3 Easton Oval Ste 340
Columbus, OH 43219 - GENERATION MORTGAGE COMPANY, ATLANTA, GA
3 PIEDMONT CTR NE STE 300
ATLANTA, GA 30305
