Model Edmonson
Union County, North Carolina New Homes for Sale
Union County, North Carolina New Homes for Sale
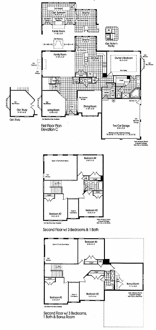
4 Bedroom, 2.5 Bath, 2 Car Garage
2525 Sq. Ft.
$210,990
Model Edmonson - Union County, North Carolina New Homes for Sale
4 Bedroom, 2.5 Bath, 2 Car Garage
2525 Sq. Ft.
$210,990
Area: Union County, North Carolina
Opulence and elegance of design best describe this model. The bright and airy two-story foyer sets the mood with the flanking formal living and dining rooms. The master retreat is on the main floor along with a gourmet kitchen and family room. At the top of the stairs you overlook both the family room and the foyer before encountering the balance of the bedrooms. Planned community designed as a neo-traditional town with government town center, shopping, recreation area, park, private school and a wide range of housing options in indivdual neighborhoods.
Please complete the form below to get more information on Model Edmonson and other available new home listings from a local Union County, North Carolina Real Estate Agent
Contact a local Union County, NC Real Estate Agent
(Please enter all fields.)
Edmonson in Union County
Featured New Home
Featured Mortgage Brokers
- TOP FLITE FINANCIAL INC, WEST LINN, OR
1800 BLANKENSHIP RD STE 200
WEST LINN, OR 97068 - VENTA FINANCIAL GROUP INC, LAS VEGAS, NV
1300 S JONES BLVD STE 150
LAS VEGAS, NV 89146 - CSTONE MORTGAGE INC, SAN DIEGO, CA
4545 MURPHY CANYON RD STE 213
SAN DIEGO, CA 92123 - Mainstream Funding Network, Inc., mortgage broker in Williamsville, NY
5586 Main St.
Williamsville, NY 14221 - FIRST HERITAGE FINANCIAL, LLC, TREVOSE, PA
2655 NESHAMINY INTERPLEX DR
TREVOSE, PA 19053
