Model Tahoe
Statesville, North Carolina New Homes for Sale

Statesville, North Carolina New Homes for Sale
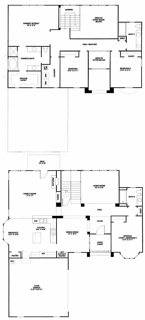
4 Bedroom, 3 Bath, 2 Car Garage
2596 Square Feet
$230,750
Model Tahoe - Statesville, North Carolina New Homes for Sale
4 Bedroom, 3 Bath, 2 Car Garage
2596 Square Feet
$230,750
Area: Statesville, North Carolina
This home is an exciting two story plan with four bedrooms, three full baths. Bedroom four is an optional study/home office. A balcony overlooks the stunning two-story foyer and living room. An expansive great room with fireplace and media niche adjoins the kitchen/breakfast room.
Please complete the form below to get more information on Model Tahoe and other available new home listings from a local Statesville, North Carolina Real Estate Agent
Contact a local Statesville, NC Real Estate Agent
(Please enter all fields.)
Tahoe in Statesville
Featured New Home

Featured Real Estate Agents
Scott Parmiter
Ronald Scott Properties, Inc.
Phone: (980) 223-3055
Statesville, NC
Mary Palmes
Mary Palmes
Phone: (704) 838-2319
Statesville, NC
Tammy Kennedy
Tarheel Realty II
Phone: (704) 657-8995
Statesville, NC
[email protected]
Shannon Griffith
Tarheel Realty II
Phone: (704) 880-5490
Statesville, NC
[email protected]
Sonya Leonard
Keller Williams Realty
Phone: (704) 450-0588
Mooresville, NC
[email protected]
Featured Mortgage Brokers
- Intercap Lending, mortgage broker in Albuquerque, NM
5600 Wyoming Blvd NE Ste 20
Albuquerque, NM 87109 - Harvard Mortgage, mortgage broker in Albuquerque, NM
9551 Paseo del Norte NE
Albuquerque, NM 87122 - AMERICAN MIDWEST MTG CORP, CLEVELAND, OH
6363 YORK RD STE 300
CLEVELAND, OH 44130 - MANN MORTGAGE LLC, LEWISTON, ID
247 THAIN RD STE 104
LEWISTON, ID 83501 - AMERICAN FINANCIAL NETWORK INC, MURRIETA, CA
24910 WASHINGTON AVE
MURRIETA, CA 92562