Model Abbey IV
Raleigh, North Carolina New Homes for Sale
Raleigh, North Carolina New Homes for Sale
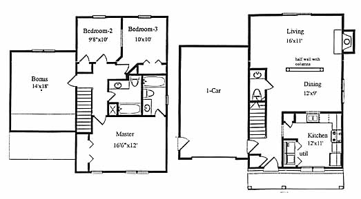
3 Bedroom, 2.5 Bath, 1 Car Garage
2106 Square Feet
$152,900
Model Abbey IV - Raleigh, North Carolina New Homes for Sale
3 Bedroom, 2.5 Bath, 1 Car Garage
2106 Square Feet
$152,900
Area: Raleigh, North Carolina
A wonderful two-story transitional floorplan featuring a full front porch and deck. Located in a quiet community with a pool and cabana.
Please complete the form below to get more information on Model Abbey IV and other available new home listings from a local Raleigh, North Carolina Real Estate Agent
Contact a local Raleigh, NC Real Estate Agent
(Please enter all fields.)
Abbey IV in Raleigh
Featured New Home
Featured Real Estate Agents
Jennifer Lange
Luxury Movers

Phone: (919) 602-5969
Raleigh, NC
Pool-Hamilton Team
Pool-Hamilton Team

Phone: (919) 525-3432
Raleigh, NC
[email protected]
Quentin Dane
Coldwell Banker

Phone: (919) 813-7737
Raleigh, NC
[email protected]
Janice Rosenberg and Team
RE/MAX United

Phone: (919) 336-0469
Raleigh, NC
[email protected]
Marti Hampton
RE/MAX One Realty

Phone: (919) 300-5307
Raleigh, NC
[email protected]
Featured Mortgage Brokers
- ACADEMY MORTGAGE CORPORATION, CHICO, CA
1600 MANGROVE AVE STE 100
CHICO, CA 95926 - LEGACYTEXAS BANK, PLANO, TX
5000 LEGACY DR FL 1
PLANO, TX 75024 - EMBRACE HOME LOANS INC, MIDDLETOWN, RI
25 ENTERPRISE CTR
MIDDLETOWN, RI 2842 - VENTA FINANCIAL GROUP INC, LAS VEGAS, NV
1300 S JONES BLVD STE 150
LAS VEGAS, NV 89146 - PINNACLE CAPITAL MORTGAGE CORPORATION, PUYALLUP, WA
311 RIVER RD STE 202
PUYALLUP, WA 98371
