Model King Street
New Hanover County, North Carolina New Homes for Sale
New Hanover County, North Carolina New Homes for Sale
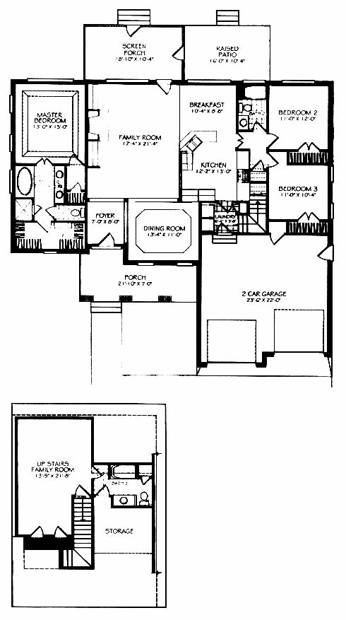
3 Bedroom, 2 Bath, 2 Car Garage
2190 Square Feet
$279,500
Model King Street - New Hanover County, North Carolina New Homes for Sale
3 Bedroom, 2 Bath, 2 Car Garage
2190 Square Feet
$279,500
Area: New Hanover County, North Carolina
This community is conveniently located within miles of the freeway, shopping and entertainment.
The foyer takes you past the dining room and into the large family room with fireplace. From here you can access the 2nd and 3rd bedrooms, hall bath kitchen with island and the massive master bedroom and bath with dual vanities. The second floor features the upstairs family room with bath.
Please complete the form below to get more information on Model King Street and other available new home listings from a local New Hanover County, North Carolina Real Estate Agent
Contact a local New Hanover County, NC Real Estate Agent
(Please enter all fields.)
King Street in New Hanover County
Featured New Home
Featured Mortgage Brokers
- Blue Square Mortgage LLC, mortgage broker in Seattle, WA
4212 33rd Ave W
Seattle, WA 98199 - MANN MORTGAGE LLC, LEWISTON, ID
247 THAIN RD STE 104
LEWISTON, ID 83501 - PRIMARY RESIDENTIAL MORTGAGE INC, BALTIMORE, MD
1816 ALICEANNA ST # B
BALTIMORE, MD 21231 - LIBERTY HOME EQUITY SOLUTIONS INC, STAMFORD, CT
263 TRESSER BLVD FL 9
STAMFORD, CT 6901 - BANK OF AMERICA NA CHARLOTTE, FOREST HILLS, NY
10510 QUEENS BLVD STE 2
FOREST HILLS, NY 11375
